|
|
|
|
|
WE
PROUDLY SUPPORT FALLINGWATER AND THE WESTERN
PENNSYLVANIA CONSERVANCY
 |
|
|
|
| |
|
|
Ellis was born in East Liverpool, England in June 1908.
Alice Spielman was born in April 1912, in the Bronx, New
York. In 1920, when Alice was 8, her family moved to Canton
Ohio. Ellis' family also moved to Canton, and both families
were very active in the Jewish community there.
"Mr. Feiman is a musician of note...
Mrs. Feiman is well known in Massillon (Ohio) as a teacher
of piano... After attending Western Reserve University he
graduated from Mt. Union College. He later took a post
graduate course at University of Edinburgh, Scotland, and is
now associated in business with his father."*
"Alice graduated from high school at age 16
and accepted a full four-year scholarship in piano
performance at the Cleveland Institute of Music, receiving a
Bachelors degrees in Music, '32 and Masters in '36... In 1937
she married Ellis A. Feiman whom she had known since
childhood when they both rode the trolley to Cleveland for
lessons at the Institute."**
As a wedding gift, Ellis' parents gave them
a Steinway piano, and a generous share of the family's
wholesale tobacco and candy business.
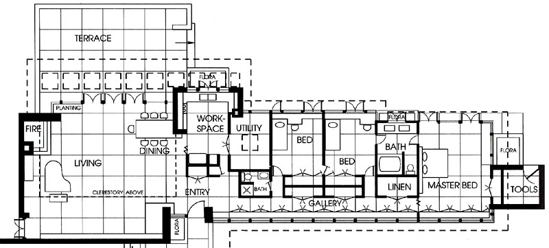
There are three Frank Lloyd Wright homes in
Canton, Ohio. The Nathan and Jeanne Rubin Residence (1951 -
S.343), the John and Syd Dobkins Residence (1953 - S.362),
and the Ellis and Alice Feiman Residence (1954 - S.371.)
Jeanne Rubins and Alice Feiman were
sisters.
“My mom and dad met Frank Lloyd Wright,”
recalled Robert Rubin, who lives in the home that his
parents, Nathan and Jeanne Rubin, commissioned the noted
architect to design early in the 1950s. “They went to see
Wright several times.”
“The (Rubin) house was finished, and Nate
and Jeanne moved in and invited Alice over and she loved it
and wanted one herself,” said Dave Lewis, who lives
beside the Feiman house and knew both families.
The nine city traveling exhibition
"Sixty Years of Living |
|
Architecture, the Work of Frank Lloyd Wright" began in
Florence (1), Italy, in June, 1951, and closed in Chicago
(9) in
October, 1956. When it open in
New York City (7)
on October 22, 1953, not only did it include the exhibition,
but it also included a newly designed fully furnished 1,700
sq. ft. ''Usonian
House'' (S.369), constructed on the site for the
soon-to-be Guggenheim Museum.
On a trip from Cincinnati to Seattle with
my daughter and two grandsons, we decided to surprise them
with a trip to the Football Hall of Fame in Canton, Ohio. Of
course, this gave me the opportunity to view the Feiman
Residence.
The Feiman Residence is considered the
first Usonian house built, based on Wright's design for the
New York exhibition house. The second being the
Trier Residence (1956 - S.398).
While the New York exhibition house was
based on the 3 foot square module, and utilized brick and
oak plywood, the Feiman house was based
on the four foot module and constructed of brick and
Philippine mahogany. The openings in the brickwork, creating
a decorative pattern, matched the exhibit house. Like the
exhibition house, the ceiling was composed of halved sheets
of plywood, with every other sheet rotated 90 degrees,
creating a rich wood pattern. Like the Trier Residence, this
home also included a third bedroom. Wright also added a
carport which is set at a 90 degree angle to the front of
the house, and covers the entrance. Taliesin apprentice Allan J.
Gelbin oversaw the construction of the house.
Ellis was 62 years old when
he past away on October 13, 1970. To honor her husband,
Alice established the Ellis A. Feiman Memorial Award in Cello
at the Cleveland Institute of Music. She continued to live
in their Wright home until 1983 when she moved away from
Canton. She past away on July 15, 2006 in Baltimore,
Maryland, donating her 1925 Steinway piano to the Cleveland
Institute of Music.
May 2015 |
| |
|
*Evening
Independent, Massillon, Ohio, July 20, 1937.
**Alice Feiman
Obituary, Canton OH, The Repository. |
| |
|
|
| |
|
|
| |
|
|
|
Feiman Residence Perforated Light
Screen |
|
|
 |
|
Feiman Residence Perforated
Light Screen. The light screens are on the northern side and
run from the Entrance along the Gallery and the
Master Bedroom. Adapted by Douglas M. Steiner. |
|
|
|
|
|
|
|
|
Feiman Residence Exterior - By Douglas M. Steiner
(2015) |
| |
|
|
|
Ellis & Alice Feiman Residence 2015, Canton, Ohio (1954 -
S.371). The Feiman Residence is considered the first Usonian
house built, based on Frank Lloyd Wright's design for the
New York exhibition house. The second being the Trier
Residence (1956 - S.398). While the New York exhibition
house was based on the 3 foot square module, and utilized
brick and oak plywood, the Feiman house is based on the four
foot module and constructed of brick and Philippine
mahogany. The openings in the brickwork, creating a
decorative pattern, matches the exhibit house. Like the |
|
exhibition house, the ceiling is composed of halved sheets
of plywood, with every other sheet rotated 90 degrees,
creating a rich wood pattern. Like the Trier Residence, this
home also includes a third bedroom. Wright also added a
carport which is set at a 90 degree angle to the front of
the house, and covers the entrance. Taliesin apprentice
Allan J. Gelbin oversaw the construction of the house. Set
of 58 photographed in May, 2015 by Douglas M. Steiner,
Copyright 2015. |
| |
|
|
 |
|
1) Feiman Residence viewed from the Northeast.
The Feiman Residence is considered the first
Usonian house built, based on Frank Lloyd
Wright's design for the New York exhibition
house, although changes were made. The
exhibition house privacy wall attached to the
end of the home, and the perforations were on
either side of the fireplace. Wright turned the
wall 90 degrees, running the length of the
Living Room wall and beyond, perforating the
northern side of the Living Room and yard. The
Living Room is on the left, the Entrance is
hidden in the center, the Carport is on the
right. 20 x 14 high res digital color
photograph. (ST#2015.12.0216-1) |
| |
 |
|
2) Feiman Residence viewed from the Northeast.
Designed by Frank Lloyd Wright in 1953, the
wall, adding privacy to the yard, ran from the
left, seamlessly becoming the Living Room wall,
and ending at the Entrance. The openings in the
brickwork, created a decorative pattern on the
exterior and interior wall, and matched the
design of the exhibit house. The yard is on the
left, the Living Room is on the right. 20 x 14
high res digital color photograph.
(ST#2015.12.0216-2) |
| |
 |
|
3) Feiman Residence viewed from the North.
Designed by Frank Lloyd Wright in 1953, the
carport is held up by four brick piers. The
Living Room is on the left. The perforated holes
in the brick wall adds a design inside and out.
The carport roof cantilevers out approximately
fourteen feet past the piers and covers the
Entrance, reached between the piers on the left.
20 x 14 high res digital color photograph.
(ST#2015.12.0216-3) |
| |
 |
|
4) Feiman Residence viewed from the West. The
carport is held up by four brick piers. The
Living Room is in the background, clerestory
windows allow soft light. The bedroom wing is to
the right. The carport roof cantilevers out
approximately fourteen feet and covers the
Entrance. A low wall guides visitors to the
Entrance. 20 x 14 high res digital color
photograph. (ST#2015.12.0216-4) |
| |
 |
|
5) Feiman Residence viewed from the West. The
carport is held up by four brick piers. The
Living Room is in the background, clerestory
windows allow soft light. A skylight adds
natural light to the utility room. The carport
roof cantilevers out approximately fourteen feet
and covers the Entrance. A low wall guides
visitors to the Entrance. The bedroom wing is to
the right. 20 x 14 high res digital color
photograph. (ST#2015.12.0216-5) |
| |
 |
|
6) Feiman Residence viewed from the West. The
carport is held up by four brick piers. The
Living Room is in the background, clerestory
windows allow soft light. A skylight adds
natural light to the utility room. The carport
roof cantilevers out approximately fourteen feet
and covers the Entrance. A low wall guides
visitors to the Entrance. The bedroom wing is to
the right. Perforated light screens run from the
Entrance along the Gallery and the Master
Bedroom. 20 x 14 high res digital color
photograph. (ST#2015.12.0216-6) |
| |
 |
|
7) Feiman Residence viewed from the Northwest.
The Living Room is in the background, clerestory
windows allow soft light. A skylight adds
natural light to the utility room. The roof
cantilevers out approximately fourteen feet and
covers the Entrance. A low wall guides visitors
to the Entrance. The bedroom wing is to the
right. Perforated light screens run from the
Entrance along the Gallery and the Master
Bedroom. 20 x 14 high res digital color
photograph. (ST#2015.12.0216-7) |
| |
 |
|
8) Feiman Residence, view of the bedroom wing
from the Northwest. The Entrance is on the left,
bedroom wing is on the right. Perforated light
screens run from the Entrance along the Gallery
and the Master Bedroom on the right. 20 x 14
high res digital color photograph.
(ST#2015.12.0216-8) |
| |
 |
|
9) Feiman Residence, view of the carport from
the West. Designed by Frank Lloyd Wright in
1953, the carport is set at a 90 degree angle to
the front of the house. The roof cantilevers out
approximately fourteen feet past the four piers
and covers the Entrance. A low wall guides
visitors to the Entrance. As in the rest of the
house, the ceiling is composed of halved sheets
of plywood, with every other sheet rotated 90
degrees, creating a rich wood pattern. 20 x 14
high res digital color photograph.
(ST#2015.12.0216-9) |
| |
 |
|
10) Feiman Residence viewed from the West. The
low wall curves gracefully toward the entrance,
guiding visitors from the drive to the front
door. 20 x 14 high res digital color photograph.
(ST#2015.12.0216-10) |
| |
 |
|
11) Feiman Residence viewed from the Northwest.
The low wall flows gracefully from he piers
toward the entrance, guiding visitors to the
front door. The Bedroom wing is to the right. 20
x 14 high res digital color photograph.
(ST#2015.12.0216-11) |
| |
 |
|
12) View of the Feiman Residence Entrance from
the West. 20 x 14 high res digital color
photograph. (ST#2015.12.0216-12) |
| |
 |
|
13) View of the Feiman Residence Entrance from
the Northwest. 20 x 14 high res digital color
photograph. (ST#2015.12.0216-13) |
| |
 |
|
14) View of the Feiman Residence Carport from
the Entrance. The roof cantilevers out
approximately fourteen feet past the four piers.
The ceiling of the carport is composed of halved
sheets of plywood, with every other sheet
rotated 90 degrees. 20 x 14 high res digital
color photograph. (ST#2015.12.0216-14) |
| |
 |
|
15) View of the Feiman Residence Carport from
the Entrance. Four foot square modules are
scored into the concrete of the Entrance. 20 x
14 high res digital color photograph.
(ST#2015.12.0216-15) |
| |
 |
|
16) Feiman Residence viewed from the West. The
perforated privacy wall runs the length of the
Living Room wall and beyond, enclosing part of
the yard. 20 x 14 high res digital color
photograph. (ST#2015.12.0216-16) |
| |
 |
|
17) Feiman Residence viewed from the Northeast.
Perforated light screens run from the Entrance
along the Gallery and the Master Bedroom. 20 x
14 high res digital color photograph.
(ST#2015.12.0216-17) |
| |
 |
|
18) Detail of the perforated light screens which
run from the Entrance along the Gallery and the
Master Bedroom. The pattern is cut from two
matching pieces of plywood, sandwiched with a
sheet of class, adding a measure of privacy from
the street. 20 x 14 high res digital color
photograph. (ST#2015.12.0216-18) |
| |
 |
|
19) Feiman Residence viewed from the West. The
Living Room and workspace are in the background.
Clerestory windows, that rise above the bedroom
wing, adds indirect lighting to the Living Room.
Perforated light screens run from the Entrance
along the Gallery and the Master Bedroom, adding
a measure of privacy from the street. 20 x 14
high res digital color photograph.
(ST#2015.12.0216-19) |
| |
 |
|
20) Feiman Residence viewed from the West. The
Living Room is in the background on the left.
Perforated light screens run from the Entrance
along the Gallery and the Master Bedroom, and
wraps around the corner. Glass, sandwiched
between to sheets of perforated plywood, is
mitered at the corner. The outdoor tool storage
room is on the right. 20 x 14 high res digital
color photograph. (ST#2015.12.0216-20) |
|
| |
 |
|
21) Detail of the corner perforated light
screens. Glass, sandwiched between to sheets of
perforated plywood, is mitered at the corner.
Roof rafters have been uncovered, exposing the
original construction. 20 x 14 high res digital
color photograph. (ST#2015.12.0216-21) |
| |
 |
|
22) Detail of the corner perforated light
screens. Glass, sandwiched between to sheets of
perforated plywood, is mitered at the corner.
Perforated light screens run from the Entrance
along the Gallery and the Master Bedroom, and
wraps around the corner. 20 x 14 high res
digital color photograph. (ST#2015.12.0216-22) |
| |
 |
|
23) Detail of the Feiman Residence fascia. The
top piece is slanted at 15 degrees. The lower
piece has a vertical groove approximately four
inches apart. 20 x 14 high res digital color
photograph. (ST#2015.12.0216-23) |
| |
 |
|
24) Feiman Residence viewed from the West. Both
the fascia and perforated light screens turn and
end at the brick wall enclosing the tool storage
room. 20 x 14 high res digital color photograph.
(ST#2015.12.0216-24) |
| |
 |
|
25) Detail of the Feiman Residence fascia. The
top piece is slanted at 15 degrees. The lower
piece has a vertical groove approximately four
inches apart. 20 x 14 high res digital color
photograph. (ST#2015.12.0216-25) |
| |
 |
|
26) Feiman Residence viewed from the South. The
Tool Storage Room is on the left. The Master
Bedroom is in the center. The corner is mitered
glass. Two sets of doors open outward. The Bath
is behind the second planter. Two Bedrooms are
to the right. 20 x 14 high res digital color
photograph. (ST#2015.12.0216-26) |
| |
 |
|
27) Feiman Residence viewed from the South. The
Tool Storage Room is on the left. The Master
Bedroom is in the center. The corner is mitered
glass. Two sets of doors open outward. The Bath
is behind the second planter. Two Bedrooms are
to the right. 20 x 14 high res digital color
photograph. (ST#2015.12.0216-27) |
| |
 |
|
28) Detail of the built-in brick planter. 20 x
14 high res digital color photograph.
(ST#2015.12.0216-28) |
| |
 |
|
29) Detail of the mitered glass corner. 20 x 14
high res digital color photograph.
(ST#2015.12.0216-29) |
| |
 |
|
30) Feiman Residence viewed from the Southeast.
The corner is mitered glass. Doors open outward,
and are hung by piano hinges. 20 x 14 high res
digital color photograph. (ST#2015.12.0216-30) |
| |
 |
|
31) Feiman Residence viewed from the Southeast.
The corner is mitered glass. Doors open outward,
and are hung by piano hinges. 20 x 14 high res
digital color photograph. (ST#2015.12.0216-31) |
| |
 |
|
32) Feiman Residence viewed from the South. The
Master Bedroom is on the left. The Bath is
behind the planter. Two Bedrooms are to the
right. 20 x 14 high res digital color
photograph. (ST#2015.12.0216-32) |
| |
 |
|
33) Feiman Residence viewed from the South. The
Bath is on the left behind the planter. Two
Bedrooms are to the right. The corner is mitered
glass. 20 x 14 high res digital color
photograph. (ST#2015.12.0216-33) |
| |
 |
|
34) Feiman Residence viewed from the East. The
Master Bedroom is on the far left. Two bedrooms
are in the center. The Utility Room is on the
right. 20 x 14 high res digital color
photograph. (ST#2015.12.0216-34) |
| |
 |
|
35) Feiman Residence viewed from the South. The
Workspace (Kitchen) is in the center. Two tall
windows open outward over the built-in planter.
The roof cantilevers out about six feet past the
Kitchen. The Living Room is on the right. Roof
rafters have been uncovered, exposing the
original construction. 20 x 14 high res digital
color photograph. (ST#2015.12.0216-35) |
| |
 |
|
36) Feiman Residence viewed from the South. The
Workspace (Kitchen) is in the center. Two tall
windows open outward over the built-in planter.
The roof cantilevers out about six feet past the
Kitchen. The Living Room is on the right. Floor
to ceiling doors open outward. The roof
cantilevers out about eight feet past the Living
Room. Roof rafters have been uncovered, exposing
the original construction. 20 x 14 high res
digital color photograph. (ST#2015.12.0216-36) |
| |
 |
37) Feiman Residence viewed from the South. The
Workspace (Kitchen) is in the center. Two tall
windows open outward over the built-in planter.
The Living Room is on the right. Floor to
ceiling doors open outward. The roof cantilevers
out about eight feet past the Living Room. The
terrace concrete has been scored in four foot
modules. 20 x 14 high res digital color
photograph. (ST#2015.12.0216-37)
|
 |
|
38) Detail of the cantilevered roof. Roof
rafters have been uncovered, exposing the
original construction. 20 x 14 high res digital
color photograph. (ST#2015.12.0216-38) |
| |
 |
|
39) Detail of the trellis openings. The top
piece is slanted at 15 degrees. The lower piece
has a vertical groove approximately four inches
apart. 20 x 14 high res digital color
photograph. (ST#2015.12.0216-39) |
| |
 |
|
40) Feiman Residence viewed from the South.
"More and more, so it seems to me, light is the
beautifier of the building."
Frank
Lloyd Wright On
Architecture, 1941, p.191. The Workspace
(Kitchen) is on the left. Two tall windows open
outward over the built-in planter. The Living
Room is on the right. Floor to ceiling doors
open outward. The roof cantilevers out about
eight feet past the Living Room. The terrace
concrete has been scored in four foot modules.
20 x 14 high res digital color photograph.
(ST#2015.12.0216-40) |
| |
 |
|
41) Detail of the built-in planter, which is
approximately four feet wide and eight feet
long. 20 x 14 high res digital color photograph.
(ST#2015.12.0216-41) |
| |
 |
|
42) Feiman Residence viewed from the East. The
Bedroom wing is in the background. The Workspace
(Kitchen) is on the right. Two tall windows open
outward over the built-in planter. The roof
cantilevers out about six feet past the
Workspace. 20 x 14 high res digital color
photograph. (ST#2015.12.0216-42) |
| |
 |
|
43) Feiman Residence viewed from the South.
"More and more, so it seems to me, light is the
beautifier of the building."
Frank
Lloyd Wright On
Architecture, 1941, p.191. The Workspace
(Kitchen) is on the left. The Living Room is in
the center. Floor to ceiling doors open outward.
The cantilevered trellised roof softens the
direct sunlight. The terrace concrete has been
scored in four foot modules. 20 x 14 high res
digital color photograph. (ST#2015.12.0216-43) |
| |
 |
|
Feiman Residence viewed of the interior Dining
Area 1966. Note the two brick piers now missing
on the outside terrace. |
| |
 |
44) Feiman Residence viewed from the South. The
Living Room is on the left. The perforated wall
on the rights adds privacy from the road. 20 x
14 high res digital color photograph.
(ST#2015.12.0216-43)
|
 |
|
45) Feiman Residence viewed from the South. The
Living Room is on the left. Three sets of floor
to ceiling doors open outward. There is a
mitered glass corner to the right. The trellised
roof softens the direct sunlight and cantilevers
out ten feet from the brick wall. The perforated
wall on the rights adds privacy from the road.
20 x 14 high res digital color photograph.
(ST#2015.12.0216-45) |
| |
 |
|
46) Feiman Residence viewed from the South. The
perforated privacy wall begins at the Entrance
on the left, flows past the Living Room,
seamlessly connecting with the exterior wall on
the right. The perforated holes and clerestory
windows can be seen in the Living Room. The four
foot square module Wright based the design on,
is scored into the homes tinted concrete slab,
flows from the interior outward, and is evident
in the concrete Terrace, doors and windows, and
the trellis above. 20 x 14 high res digital
color photograph. (ST#2015.12.0216-46) |
| |
 |
|
47) Feiman Residence viewed from the South.
Floor to ceiling windows and doors on the South,
and clerestory windows above, floods the Living
Room with soft light. 20 x 14 high res digital
color photograph. (ST#2015.12.0216-47) |
| |
 |
|
48) Feiman Residence viewed from the South.
Walls, windows and doors align with the four
foot square module. 20 x 14 high res digital
color photograph. (ST#2015.12.0216-48) |
| |
 |
|
49) Feiman Residence viewed from the South.
Three sets of floor to ceiling doors open
outward. A mitered glass corner is on the right.
Just inside the corner is an interior planting
area. 20 x 14 high res digital color photograph.
(ST#2015.12.0216-49) |
| |
 |
|
50) Detail of the mitered glass corner. Just
inside the corner is an interior planting area.
20 x 14 high res digital color photograph.
(ST#2015.12.0216-50) |
| |
 |
|
51) Feiman Residence viewed from the Southeast.
A large fireplace covers the interior Southeast
corner. There is a window in the Northeast
corner. The roof appears as wings on either side
of the fireplace mass. The perforated privacy
wall is on the right. 20 x 14 high res digital
color photograph. (ST#2015.12.0216-51) |
| |
 |
|
52) Feiman Residence viewed from the Southeast.
The fireplace mass is on the left. The
perforated privacy wall which begins at the
Entrance to the left, flows past the Living
Room, seamlessly connecting with the exterior
wall on the right. The roof extension over the
window in the Northeast corner defuses direct
sunlight into the Living Room. 20 x 14 high res
digital color photograph. (ST#2015.12.0216-52) |
| |
 |
53) Feiman Residence viewed from the East.
Detail of the window in the Northeast corner.
The roof extension over the window defuses
direct sunlight into the Living Room. Two
windows which open outward are hung by piano
hinges. 20 x 14 high res digital color
photograph. (ST#2015.12.0216-53)
54) Detail of the perforated privacy wall. The
wall is 2 ˝ bricks thick, the thickness of one
brick's length. 20 x 14 high res digital color
photograph. (ST#2015.12.0216-54) |
| |
 |
|
55) Feiman Residence viewed from the East. The
terrace rises slowly, covered by a cantilevered
trellis extending out ten feet on the left. A
large fireplace covers the interior's Southeast
corner. There is a window in the Northeast
corner. The roof appears as wings on either side
of the fireplace mass. Clerestory windows floods
the Living Room with soft light. 20 x 14 high
res digital color photograph.
(ST#2015.12.0216-55) |
| |
 |
|
56) Feiman Residence viewed from the East. The
terrace rises slowly, covered by a cantilevered
trellis extending out ten feet on the left. A
large fireplace covers the interior's Southeast
corner. There is a window in the Northeast
corner. The roof appears as wings on either side
of the fireplace mass. Clerestory windows floods
the Living Room with soft light. 20 x 14 high
res digital color photograph.
(ST#2015.12.0216-56) |
| |
 |
|
57) Feiman Residence viewed from the Southwest.
The perforated privacy wall which begins at the
Entrance, flows past the Living Room, seamlessly
connecting with the exterior wall, ends at the
eastern edge of the property. 20 x 14 high res
digital color photograph. (ST#2015.12.0216-57) |
| |
 |
|
58) Feiman Residence viewed from the Northeast.
The perforated privacy wall runs from the
eastern edge of the property, seamlessly
connecting with the Living Room, and ends at the
Entrance. The ends of the corner bricks are cut,
allowing for the shorter wall to be at
approximately a 60 degree angle. 20 x 14 high
res digital color photograph.
(ST#2015.12.0216-58) |
|
| |
|
| |
|
| |
|
|
Ellis & Alice
Feiman Residence (1954 - S.371) |
| |
|
 |
Date:
1966
Title:
Ellis & Alice Feiman Residence 1966, Canton, Ohio (1954 -
S.371).
Description: View of Alice Feiman in the Dining
area and Kitchen (right) viewed from the North. The Feiman
Residence is considered the first Usonian house built, based
on Frank
Lloyd Wright's design for the New York exhibition house. The second
being the Trier Residence (1956 - S.398). While the New York
exhibition house was based on the 3 foot square module, and
utilized brick and oak plywood, the Feiman house is based on
the four foot module and constructed of brick and Philippine
mahogany. Wright also added a carport which is set at a 90
degree angle to the front of the house, and covers the
entrance. Alice graduated from high school at age 16 and
accepted a full four-year scholarship in piano performance
at the Cleveland Institute of Music, receiving a Bachelors
degrees in Music, '32 and Masters in '36... In 1937 she
married Ellis A. Feiman whom she had known since childhood.
Ellis was 62 years old when he past away on October 13,
1970. She continued to live in their Wright home until 1983
when she moved away from Canton. She past away on July 15,
2006 in Baltimore, Maryland. Hand written on verso: Mrs.
Ellis A Feiman, 452 Santa Clara Dr. NW Canton. House
designed by Frank
Lloyd Wright." Stamped on verso: "Jan 18 1966. The Cleveland Plain
Dealer. Photo by William A. Wynne." Photographed on Jan 18,
1966 by William A. Wynne. Acquired from the archives of the
Cleveland Plain Dealer.
Size:
Original 9 x 7 B&W photograph.
S#:
1679.17.0817 |
| |
|
 |
Date:
1966
Title:
Ellis & Alice Feiman Residence 1966, Canton, Ohio (1954 -
S.371).
Description: View of Terrace from the Dining
Room. The Feiman Residence is considered the first Usonian
house built, based on FL Wright's design for the New York
exhibition house. The second being the Trier Residence (1956
- S.398). While the New York exhibition house was based on
the 3 foot square module, and utilized brick and oak
plywood, the Feiman house is based on the four foot module
and constructed of brick and Philippine mahogany. Wright
also added a carport which is set at a 90 degree angle to
the front of the house, and covers the entrance. Alice
graduated from high school at age 16 and accepted a full
four-year scholarship in piano performance at the Cleveland
Institute of Music, receiving a Bachelors degrees in Music,
'32 and Masters in '36... In 1937 she married Ellis A.
Feiman whom she had known since childhood. Ellis was 62
years old when he past away on October 13, 1970. She
continued to live in their Wright home until 1983 when she
moved away from Canton. She past away on July 15, 2006 in
Baltimore, Maryland. Hand written on verso: "Home of Ellis A
Feiman, 452 Santa Clara Dr. NW Canton. House designed by
Frank Lloyd
Wright." Stamped on
verso: "Jan 18 1966. The Cleveland Plain Dealer. Photo by
William A. Wynne." Photographed on Jan 18, 1966 by William
A. Wynne. Acquired from the archives of the Cleveland Plain
Dealer.
Size:
Original 7 x 9 B&W photograph.
S#:
1679.18.1117 |
| |
|
| |
|
| |
|
|