SEARCH WRIGHT LIBRARY
WRIGHT SITES

ADDITIONS & DISCOVERIES
AMERICAN SYST BLT HOMES
ARCHITECTURAL STUDIES
ARIZONA BILTMORE
ARTS & CRAFTS
AUSGEFUHRTE BAUTEN
BIOGRAPHIES
BROADACRE CITY
CALENDARS
CARY CARAWAY ARCHIVES
CHAIRS
CHAPTERS ON & BY WRIGHT
CHICAGO SCHOOL
CHILDREN'S
CHURCHS
CONVERSATIONS
COPPER URN
DECORATIVE DESIGNS
DISCOVERIES & ADDITIONS
DOMINO'S
DRAWINGS
EVE OF ST. AGNES
EXHIBITIONS
FALLINGWATER
FINDING WRIGHT
FLW FOUNDATION
FLORIDA SOUTHERN COLLEGE
FOREIGN PUBLICATIONS
FRANK LLOYD WRIGHT DAY
FURNITURE
GA SERIES
GLASS
GUIDE TO WRIGHT BUILDINGS
GUIDES
GUGGENHEIM
HERITAGE-HENREDON
HOME & STUDIO (OAK PARK)
HOMES & BLDS: GENERAL
HOMES & BLDS: SPECIFIC
HOTEL GENEVA
HOUSE BEAUTIFUL
IMPERIAL HOTEL
JAPAN
KEATS, JOHN
LANDSCAPE
LARKIN BUILDING
LIBERTY MAGAZINE COVERS
LIGHT SCREENS
LUXFER GLASS TILES
MADISON WISC
MAMAH BORTHWICK CHENEY
MARSHALL ERDMAN
MIDWAY GARDENS
MILE HIGH
MODELS BY WRIGHT
MORGAN, CHARLES L.
MUSIC STANDS (QUARTET)
NAKOMA
NEW THEATRE
PETERS (WES)
PHOTOGRAPHERS
PICTORIAL ESSAYS
PRAIRIE SCHOOL
PRESS RELEASE
PRINTING PROCESS
PROJECTS
ROBIE HOUSE
SCHUMACHER
SC JOHNSON
SEARCHING FOR WRIGHT
SEYMOUR, RALPH FLETCHER
SIXTY YEARS EXHIB 1951-56
SLIDE SHOW
STUDIES
SULLIVAN, LOUIS
TALIESIN FELLOWSHIP
TALIESIN (SPRING GREEN)
TALIESIN WEST
TALIESIN SQUARE-PAPERS
UNITY TEMPLE
USONIA
USONIAN AUTOMATIC HOMES
WEED HOLDER
WAY & WILLIAMS
WENDINGEN
WRIGHT CHILDREN
WRIGHT,  FRANK LLOYD
WRIGHT &
WRIGHT FURNISHINGS
WRITINGS BY WRIGHT
 

SUPPORT THE
WRIGHT LIBRARY

PROCEEDS FROM EVERY SALE GOES TO SUPPORT THE WRIGHT LIBRARY.
CLICK TO ORDER
.

 
 
 
 
 
WE PROUDLY SUPPORT THE FRANK LLOYD WRIGHT FOUNDATION
 
 

WE PROUDLY SUPPORT THE FRANK LLOYD WRIGHT BUILDING CONSERVANCY

 

WE PROUDLY SUPPORT FALLINGWATER
AND THE WESTERN PENNSYLVANIA CONSERVANCY

 
 
 
IOWA
 
There are a total of 11 homes and buildings located in Iowa.
  ALSOP    CITY NATIONAL BANK    GRANT    LAMBERSON    MEIER    MILLER    PARK INN    SUNDAY    STOCKMAN    TRIER    WALTER 
 
 
  MINNESOTA    MISSOURI    NEBRASKA    OTHER HOMES 
 
   
Date: 1977

Title: The Prairie School in Iowa (Soft Cover) (Published by The Iowa State University Press, Ames, Iowa)

Author: Wilson, Richard Guy; Robinson, Sidney K.

Description: Introduction: "Thoroughly saturated with the spirit of the prairie," is how Frank Lloyd Wright described his work in 1903.' Nestled in the broad flat landscape of the Midwest are buildings that are part of the region, that belong. In the history of art and architecture, regional styles have been one of the more creative and fascinating attempts by people to project their own identities. The Prairie School style of the midwestern United States is one example, founded very directly on the climate, land forms, and life-style of the region. Its uniqueness is unquestioned; the buildings by Frank Lloyd Wright, Louis Sullivan, and overseas in the first two decades of the twentiety century, finally ceasing in the late 1920s. After a hiatus, Frank Lloyd Wright, who had removed himself from the scene in 1909, returned in the mid-1930s with renewed creative energy. The second period is more national in scope, with Wright design and their followers are recognized as important contributions to contemporary architecture and art. Beginning in the Chicago suburbs and small prairie towns, the Prairie School has influenced developments worldwide from the Netherlands to Australia.
       Chronologically the Prairie School has two distinct and separate periods. The first was in the Chicago area in the latter 1890s. It spread across the Midwest and ultimately to other parts of the country ing buildings from California to New Hampshire, but still the Midwest was his focus...
       Includes the work of Frank Lloyd Wright in Iowa. (First Edition)


Size:  8 x 10

Pages: Pp 127

ST#:
2033.35.0124
   
Date: 2004

Title: A Century of Iowa Architecture 1900-1999 (Soft Cover) (Published by The Amerrican Institute of Architects, Iowa Chapter, Des Moines, Iowa)

Author: Alread, Jason; Photographs: Cameron Campbell

Description: Introduction: Iowa is known as the prehistoric home of the Mound Builders, Native American tribes that constructed ceremonial mounds throughout the state. It's obvious that there was a strong desire from thousands of years ago to make an enduring mark on the land, and this has been a repeated pattern with each successive group of people who have come to populate the state. The reasons for the early interest in lowa are clear; some of the best agricultural soil in the world is here. This is combined with open rolling prairie that required little clearing, abundant fingers of timber along navigable waterways and ample supplies of coal and limestone. Establishing towns and farmsteads in Iowa occurred at a very rapid pace because of these resources which contributed to a particular way of building here. Most of the state's buildings from early on reflect a keen understanding of contemporary building technique and style, combined with a Midwestern ethic for making things uncommonly well.
       Includes buildings designed by Frank Lloyd Wright. 1909: City National Bank Building / Park Inn Hotel. 1950: Cedar Rock, Lowell Walter House. 1951: Jack Lamberson House. (First Edition)

Size: 8.5 x 9.5

Pages: Pp 112

ST#:
2004.99.0424
   
Date: 2015

Title: Des Moines Architecture & Design (Soft Cover) (Published by The History Press, Charleston, SC)

Author: Pridmore, Jay

Description: Back cover: "Chart the evolution of an architectural jewel in the American heartland. Des Moines boasts a remarkable architectural portfolio rich in depth and quality. The town drew wide attention in the nineteenth century with structures like the Iowa State Capitol and the Terrace Hill mansion. Des Moines embraced the City Beautiful movement in the twentieth century and became home to well-known work by Eliel and Eero Saarinen, notably the city's innovative Art Center. A contemporary architectural renaissance produced lauded landmarks like the Meredith Headquarters, the Des Moines Public Library and the John and Mary Pappajohn Sculpture Park. Author Jay Pridmore crafts an illustrated survey of the architecture and design of Iowa's largest city." Note: We provided one photograph of the Trier House in Johnson, Iowa, designed by Frank Lloyd Wright in 1956. Original list price $24.99. (First Edition)

Size: 7.5 x 9.25

Pages: Pp 174

ST#:
2015.37.0521
   
Date: 2016

Title: Frank Lloyd Wright and Mason City, Architectural Heart of The Prairie (Soft Cover) (Published by The History Press, Charleston, SC)

Author: Behrens, Roy R.

Description: In the early 1900s, Frank Lloyd Wright transformed a small Midwestern prairie community into one of the world's most important architectural destinations. Mason City, Iowa, became home to his City National Bank and Park Inn--the last surviving Wright hotel. In addition, his prototype Stockman House helped launch the Prairie School architectural style. Soon after, architect Walter Burley Griffin followed in Wright's footsteps, designing a cluster of Prairie School homes in the Rock Crest/Rock Glen neighborhood. Design historian Roy Behrens leads the way through Mason City's historic development from the Industrial Revolution to the modern era of Frank Lloyd Wright. (Back Cover.) Original list price $21.99.
(First Edition)

Size: 6 x 9 

Pages: Pp 143

ST#:
2016.27.0418
   
   
   
GRANT RESIDENCE, MARION, IOWA (1946 - S.288)
   
Date: 2010

Title: An American Proceeding: Building the Grant House with Frank Lloyd Wright (Soft Cover) (Published by Meadowside Press, Hanover, New Hampshire)

Author: Reilly, Donna Grant

Description: Back cover: In June 1950, Frank Lloyd Wright paid a surprise visit to the Grant house, under construction near Cedar Rapids, Iowa. This was Wright's first visit to the site, and he was worried about the house because, unlike most of Wright's clients, Doug Grant was building it himself, serving as his own general contractor and doing his own electrical work and carpentry. He and his wife, Jackie, quarried all of the stone for the house from their own quarry on the property, and both took an active part in the construction. Upon his return to Taliesin, Wright told the assembled group of architects and apprentices that he was extremely pleased by what he had seen. He delivered a long tribute to Grant, calling the act of building one's own house "an American proceeding."
       Providing a unique look into the world of a house under construction, Donna Grant Reilly's memoir of building and living in a Wright house will inspire and delight all fans of Frank Lloyd Wright and those who have ever thought of "doing it yourself." (First Edition)

Size: 6 x 9

Pages: Pp 182

ST#:
2010.53.0424
   
   
   
G. C. STOCKMAN RESIDENCE (1908 - S.139)
   
Date: 1909

Title: George C. Stockman House, Mason City, Iowa, 1909/1992 (1908 - S.139).

Description: 1) Set of eight historic postcards. Historic view of the front of the house from the street. Designed by Frank Lloyd Wright in 1908. In the April, 1907 issue of Ladies Home Journal, Frank Lloyd Wright proposed his "Fireproof House for $5000." Wright adapted this plan in 1908 for the Stockman House. Text on verso: "Stockman House Exterior, circa 1909. Designed in 1908 by Frank Lloyd Wright for one of Mason City, lowa's pioneer physicians, Dr. George C. Stockman." Photographed in 1909, shortly after completion, published in 1992 as a set. Continue...

Size: 6 x 4.

S#:
0086.35.0124 (1-7)
   


 See Additional Photographs...
   


 See Additional Photographs...
   
   
   
Date: 1910

Title: Representative Cement Houses (Soft Cover) (Published by the Universal Portland Cement Company, Chicago, Pittsburg)

Author: Universal Portland Cement Co.

Description: Preface: The object of this book is to indicate by illustrations and descriptions, one of the newer but very rapidly expanding fields of the application of cement, namely, in residence construction...




Page 81:
Dr. Stockman's Residence, Mason City, Iowa.
       A striking example of unique style of architecture, combining the attractive with the comfortable, is exemplified by the residence of Dr. G. C. Stockton, of Mason City, Iowa.
       It is a wooden frame house with an exterior coat of rough-cast white plaster. The foundation and basement floor are of solid concrete. The basement also contains a large cistern, made of concrete reinforced with wire.
       The contractor for the work was Mr. Christ Rye, of Mason City, and it was executed under the personal supervision of the architect, Mr. Frank Lloyd Wright. The cost of the house complete was $7,000.
       Dr. Stockton says that his home is thoroughly satisfactory, both as a home and as an investment, also that it is warm in winter, cool in summer, moisture-proof, and will need no painting or repairing. Includes one photographs of the Stockman Residence.

Also includes Brigham, Evans and Gilmore.
Original list price 50c.


Size: 6.25 x 9.25

Pages: Pp 128

S#:
0094.64.1119
   
Date: 1987

Title: G. C. Stockman Residence Mason City, Iowa 1987 (1908 - S.139).

Description: View of the exterior front elevation from the street. The Stockman house is derived from the "A Fireproof House of $5000." Clipping pasted to verso: "Dr. E.G. Stockman commissioned Frank Lloyd Wright to built this Prairie-style house during a time of growth and prosperity in Mason city. Staff Photos by Ingrid Sundstrom." Stamped on clipping: "Jul 25 1987." Photographed by Ingrid Sundstrom.

Size: Original 10 x 8 B&W photograph.

ST#:
1987.113.1019
   
Date: 1987

Title: G. C. Stockman Residence Mason City, Iowa 1987 (1908 - S.139).

Description: View from the Living Room toward the enclosed Veranda. The Stockman house is derived from the "A Fireproof House of $5000." Clipping pasted to verso: "Access to the sun room is provided by a row of three glass doors. It's rare when a Wright building comes up for sale, but a four-bedroom house in Mason City, Iowa, will go on the auction block next Saturday." Stamped on clipping: "Jul 25 1987."

Size: Original 10 x 8 B&W photograph.

ST#:
1987.100.1217
   
Date: 1987

Title: G. C. Stockman Residence Mason City, Iowa 1987 (1908 - S.139).

Description: View of built-in cabinets. The design created by the window mullins is repeated in the cabinet doors. Hand written on verso: "
Frank Lloyd Wright Homes." Photograph caption pasted to verso: "This is one of two built-in cabinets the flank the row of doors leading from the living room to the sunroom." Stamped on clipping: "July 25, 1987." Clipping pasted to verso: "Built in 1908, the prairie style home was modeled after A Fireproof House of $5000, in LaGrange, Illinois., which Wright had designed a year earlier for the Ladies Home Journal. The mustard colored stucco house needs some repair and restoration, and sits in an increasingly commercial neighborhood, but it still..."

Size: Original 8 x 10 B&W photograph.

ST#:
1987.105.0918
   
Date: 1987

Title: G. C. Stockman Residence Mason City, Iowa 1987 (1908 - S.139).

Description: View of the corner of a room. Oak trim is original, acoustic tiles have been added to the ceiling and between the trim. Hand written on verso: "Frank Lloyd Wright Homes." Clipping pasted to verso: "The ceilings and upper walls still have the original oak woodwork. The acoustic tile was added later. During his 72-year career the redoubtable architect Frank Lloyd Wright (1867-1959) designed more than 800 buildings. Only about 400 were built, and dozens are gone now. The survivors are regarded as historical treasures." Stamped on clipping: "Jul 25 1987."

Size: Original 10 x 8 B&W photograph.

ST#:
1987.104.0718
   
Date: 1992

Title: 8) George C. Stockman House, Mason City, Iowa, 1992 (1908 - S.139).

Description: Set of eight historically significant postcards. View of the front of the house from the street, after the house was moved and saved from destruction. Designed by Frank Lloyd Wright in 1908. In the April, 1907 issue of Ladies Home Journal, Frank Lloyd Wright proposed his "Fireproof House for $5000." Wright adapted this plan in 1908 for the Stockman House. The house went though a number of different owners, and in 1987, it was put up for auction, and purchased by the First United Methodist Church next door for parking. The River City Society was formed to save the house from destruction. In 1989 the house was moved a couple blocks away to its present location, remodeled, and in 1992, it was opened to the public for viewing. Text on verso: "Stockman House Exterior, 1992. Moved from its original site in October, 1989, to its present location, 530 1st St. N.E., it is owned by the River City Society for Historic Preservation, P.O. Box 565, Mason City, lowa 50401, which is continuing its restoration." Photographed and published in 1992 as a set. See Additional Photographs...

Size: 6 x 4.

ST#:
1992.161.0124
   
Date: Circa 1992

Title: George C. Stockman House Circa 1992 (1908 - S.139).

Description: 1) View from the Southeast. Set of eight postcards. In the April, 1907 issue of Ladies Home Journal, Frank Lloyd Wright proposed his "Fireproof House for $5000." Wright adapted this plan in 1908 for the Stockman House. The house went though a number of different owners, and in 1987, it was put up for auction, and purchased by the First United Methodist Church next door for parking. The River City Society was formed to save the house from destruction. In 1989 the house was moved a couple blocks away to its present location, remodeled, and in 1992, it was opened to the public for viewing. Text on verso: "View from the Southeast. George C. & Eleanor Stockman House. Frank Lloyd Wright - 1908. Mason City, Iowa."

Size: 6 x 4

ST#:
1992.129.0620-1
   
Date: Circa 1992

Title: George C. Stockman House Circa 1992 (1908 - S.139).

Description: 2) View from the Street. Set of eight postcards. In the April, 1907 issue of Ladies Home Journal, Frank Lloyd Wright proposed his "Fireproof House for $5000." Wright adapted this plan in 1908 for the Stockman House. The house went though a number of different owners, and in 1987, it was put up for auction, and purchased by the First United Methodist Church next door for parking. The River City Society was formed to save the house from destruction. In 1989 the house was moved a couple blocks away to its present location, remodeled, and in 1992, it was opened to the public for viewing. Text on verso: "Principle entrance, showing cantilevered portico roof and balcony. George C. & Eleanor Stockman House. Frank Lloyd Wright - 1908. Mason City, Iowa."

Size: 6 x 4

ST#: 1992.129.0620-2
   
Date: Circa 1992

Title: George C. Stockman House Circa 1992 (1908 - S.139).

Description: 3) View of the backyard from the Northeast. Set of eight postcards. In the April, 1907 issue of Ladies Home Journal, Frank Lloyd Wright proposed his "Fireproof House for $5000." Wright adapted this plan in 1908 for the Stockman House. The house went though a number of different owners, and in 1987, it was put up for auction, and purchased by the First United Methodist Church next door for parking. The River City Society was formed to save the house from destruction. In 1989 the house was moved a couple blocks away to its present location, remodeled, and in 1992, it was opened to the public for viewing. Text on verso: "Cutting garden viewed from Northeast, showing garden entrance to veranda. George C. & Eleanor Stockman House. Frank Lloyd Wright - 1908. Mason City, Iowa."

Size: 6 x 4

ST#: 1992.129.0620-3
   
Date: Circa 1992

Title: George C. Stockman House Circa 1992 (1908 - S.139).

Description: 4) View from the South end of the Living Room, with the Entrance in the background.. The fireplace is on the left. Set of eight postcards. In the April, 1907 issue of Ladies Home Journal, Frank Lloyd Wright proposed his "Fireproof House for $5000." Wright adapted this plan in 1908 for the Stockman House. The house went though a number of different owners, and in 1987, it was put up for auction, and purchased by the First United Methodist Church next door for parking. The River City Society was formed to save the house from destruction. In 1989 the house was moved a couple blocks away to its present location, remodeled, and in 1992, it was opened to the public for viewing. Text on verso: "South end of living room, showing Arts & Crafts furniture. George C. & Eleanor Stockman House. Frank Lloyd Wright - 1908. Mason City, Iowa."

Size: 6 x 4

ST#: 1992.129.0620-4
   
Date: Circa 1992

Title: George C. Stockman House Circa 1992 (1908 - S.139).

Description: 5) View from the North end of the Living Room. The doors to the Veranda are in the background. The fireplace is on the right. Set of eight postcards. In the April, 1907 issue of Ladies Home Journal, Frank Lloyd Wright proposed his "Fireproof House for $5000." Wright adapted this plan in 1908 for the Stockman House. The house went though a number of different owners, and in 1987, it was put up for auction, and purchased by the First United Methodist Church next door for parking. The River City Society was formed to save the house from destruction. In 1989 the house was moved a couple blocks away to its present location, remodeled, and in 1992, it was opened to the public for viewing. Text on verso: "South (sic... North) end of living room, showing Arts & Crafts furniture. George C. & Eleanor Stockman House. Frank Lloyd Wright - 1908. Mason City, Iowa."

Size: 6 x 4

ST#: 1992.129.0620-5
   
Date: Circa 1992

Title: George C. Stockman House Circa 1992 (1908 - S.139).

Description: 6) View of the Dining Room. Set of eight postcards. In the April, 1907 issue of Ladies Home Journal, Frank Lloyd Wright proposed his "Fireproof House for $5000." Wright adapted this plan in 1908 for the Stockman House. The house went though a number of different owners, and in 1987, it was put up for auction, and purchased by the First United Methodist Church next door for parking. The River City Society was formed to save the house from destruction. In 1989 the house was moved a couple blocks away to its present location, remodeled, and in 1992, it was opened to the public for viewing. Text on verso: "Dining room showing Wright's furniture styling before 1909. George C. & Eleanor Stockman House. Frank Lloyd Wright - 1908. Mason City, Iowa."

Size: 6 x 4

ST#: 1992.129.0620-6
   
Date: Circa 1992

Title: George C. Stockman House Circa 1992 (1908 - S.139).

Description: 7) View of the Kitchen. Set of eight postcards. In the April, 1907 issue of Ladies Home Journal, Frank Lloyd Wright proposed his "Fireproof House for $5000." Wright adapted this plan in 1908 for the Stockman House. The house went though a number of different owners, and in 1987, it was put up for auction, and purchased by the First United Methodist Church next door for parking. The River City Society was formed to save the house from destruction. In 1989 the house was moved a couple blocks away to its present location, remodeled, and in 1992, it was opened to the public for viewing. Text on verso: "South half of Kitchen. George C. & Eleanor Stockman House. Frank Lloyd Wright - 1908. Mason City, Iowa."

Size: 6 x 4

ST#: 1992.129.0620-7
   
Date: Circa 1992

Title: George C. Stockman House Circa 1992 (1908 - S.139).

Description: 8) View of an upstairs bedroom. Set of eight postcards. In the April, 1907 issue of Ladies Home Journal, Frank Lloyd Wright proposed his "Fireproof House for $5000." Wright adapted this plan in 1908 for the Stockman House. The house went though a number of different owners, and in 1987, it was put up for auction, and purchased by the First United Methodist Church next door for parking. The River City Society was formed to save the house from destruction. In 1989 the house was moved a couple blocks away to its present location, remodeled, and in 1992, it was opened to the public for viewing. Text on verso: "Southeast bedroom, containing room's original mission furniture. George C. & Eleanor Stockman House. Frank Lloyd Wright - 1908. Mason City, Iowa."

Size: 6 x 4

ST#: 1992.129.0620-8
   
   
GEORGE C. STOCKMAN HOUSE 1909/1992
   
George C. Stockman House, Mason City, Iowa, 1909/1992 (1908 - S.139). Set of eight historic postcards. Designed by Frank Lloyd Wright in 1908. In the April, 1907 issue of Ladies Home Journal, Frank Lloyd Wright proposed his "Fireproof House for $5000." Wright adapted this plan in 1908 for the Stockman House. Text on verso: "Stockman House Exterior, circa 1909. Designed in 1908 by Frank Lloyd Wright for one of Mason City, lowa's pioneer physicians, Dr. George C. Stockman." Photographed in 1909, shortly after completion, published in 1992 as a set.
 
1) George C. Stockman House, Mason City, Iowa, 1909/1992 (1908 - S.139). Historic view of the front of the house from the street.  (S#0086.35.0124 -1)
 
2) George C. Stockman House, Mason City, Iowa, 1909/1992 (1908 - S.139). Historic view of the living room.  (S#0086.35.0124 -2)
 
3) George C. Stockman House, Mason City, Iowa, 1909/1992 (1908 - S.139). Historic view of the living room.  (S#0086.35.0124 -3)
 
4) George C. Stockman House, Mason City, Iowa, 1909/1992 (1908 - S.139). Historic view of the living room.  (S#0086.35.0124 -4)
 
5) George C. Stockman House, Mason City, Iowa, 1909/1992 (1908 - S.139). Historic view of the dining room.  (S#0086.35.0124 -5)
 
6) George C. Stockman House, Mason City, Iowa, 1909/1992 (1908 - S.139). Historic view of the kitchen room.  (S#0086.35.0124 -6)
 
7) George C. Stockman House, Mason City, Iowa, 1909/1992 (1908 - S.139). Historic view of the upstairs bedroom.  (S#0086.35.0124 -7)
 
8) George C. Stockman House, Mason City, Iowa, 1909/1992 (1908 - S.139). View of the front of the house from the street, after the house was moved and saved from destruction. (ST#1992.161.0124 -8)
   
   
   
DELBERT W. MEIER RESIDENCE (1917 - S.204.4)
   
Date: 2021

Title: This American House, Frank Lloyd Wright's Meier House And The American System-Built Homes (Hard Cover) (Published by Pomegranate Communications, Inc., Portland, Oregon)

Author: Loper, Jason; Schreiber, Michael

Description: Frank Lloyd Wright's Meier House and the American System-Built Homes. Back cover: Long before designing his signature Usonian houses, Frank Lloyd Wright envisioned an earlier series of affordable models for the middle class: The American System-Built Homes. He developed seven floor plans of varying size and layout, standardized so that materials could be precut at the factory to reduce costs. Only a few years after the project began, the United States entered World War I, and all home construction was stalled due to lumber shortages. Wright then turned his attention to other projects, and with fewer than twenty built, the American System-Built Homes were all but forgotten.
       In 2011, Jason Loper and Michael Schreiber purchased the only American System-Built Home constructed in Iowa, the Meier House, which set them on a course of refurbishing and researching their new residence. In This American House, Loper and Schreiber trace the history of the Meier House through its previous owners, and shed light on this underexplored period of Wright's oeuvre. With a preface by John H. Waters, the Preservation Programs Manager of the Frank Lloyd Wright Building Conservancy, This American House addresses what it means to be the stewards of a piece of history. (First Edition)

Size: 9 x 10.25

Pages: Pp 128

ST#:
2021.08.0921
   
   
   
LOWELL & AGNES WALTER RESIDENCE (1945 - S.284-285)
 
Date: Circa 1905

Title: Lowell & Agnes Walter Residence, Cedar Rock, Quasqueton, Iowa, Circa 1905 (1945 - S.284).

Description: Postcard view of Cedar Rock from the South around 1905, the future site of the Walter Residence. Cedar Rock is a limestone bluff overlooking the Wapsipinicon River. Text on face: "Scenes In and In The Vicinity of Quasqueton, Iowa." Verso: "Post Card." The back is undivided. Postcards with a divided back were permitted on March 1, 1907. Lowell Walter was a successful businessman. Lowell Walter started the Iowa Road Building Company in 1917. That same year he married Agnes Neilsen, and together they built the company. Their company was successful, and they began investing in farmland. Des Moines, where they continued to maintain a winter home, was about two and a half hours from Quasqueton. So, in order to better manage their farms, they decided to build a summer home. They purchased 11.5 acres of land on the Wapsipinicon River, Cedar Rock. In 1942, they contacted Frank Lloyd Wright to design their summer home. In 1944 they sold their business in order to dedicate themselves to their farming enterprise. Plans for their home were completed in 1945, construction began in 1948, they occupied Cedar Rock in 1950. They continued investing, and by 1973, they managed 18 farms totaling 5,000 acres.

Size: 5.5 x 3.4

S#:
0058.57.1023
   
Date: Circa 1908

Title: Lowell & Agnes Walter Residence, Cedar Rock, Quasqueton, Iowa, Circa 1908 (1945 - S.284).

Description: Postcard view of Cedar Rock from the South around 1908, the future site of the Walter Residence. Cedar Rock is a limestone bluff overlooking the Wapsipinicon River. Text on face: "H 9843. Cedar Rock on the Wapsipinicon River, Independence, Iowa." Verso: "Post Card." "Pub. By H. W. Oliver, The Bibliopole & Post Card Man, Indenpence, Iowa. (Germany)." Printed in Germany using the Photogravure process. The back is divided. Postcards with a divided back were permitted on March 1, 1907. Lowell Walter was a successful businessman. Lowell Walter started the Iowa Road Building Company in 1917. That same year he married Agnes Neilsen, and together they built the company. Their company was successful, and they began investing in farmland. Des Moines, where they continued to maintain a winter home, was about two and a half hours from Quasqueton. So, in order to better manage their farms, they decided to build a summer home. They purchased 11.5 acres of land on the Wapsipinicon River, Cedar Rock. In 1942, they contacted Frank Lloyd Wright to design their summer home. In 1944 they sold their business in order to dedicate themselves to their farming enterprise. Plans for their home were completed in 1945, construction began in 1948, they occupied Cedar Rock in 1950. They continued investing, and by 1973, they managed 18 farms totaling 5,000 acres.

Size: 5.5 x 3.5

S#:
0085.55.1023
   
Date: 1910

Title: Lowell & Agnes Walter Residence, Cedar Rock, Quasqueton, Iowa, 1910 (1945 - S.284).

Description: Postcard view of Cedar Rock from the South around 1910, the future site of the Walter Residence. Cedar Rock is a limestone bluff overlooking the Wapsipinicon River. Lowell Walter was a successful businessman. Lowell Walter started the Iowa Road Building Company in 1917. That same year he married Agnes Neilsen, and together they built the company. Their company was successful, and they began investing in farmland.
       Des Moines, where they continued to maintain a winter home, was about two and a half hours from Quasqueton. So, in order to better manage their farms, they decided to build a summer home. They purchased 11.5 acres of land on the Wapsipinicon River, Cedar Rock. In 1942, they contacted Frank Lloyd Wright to design their summer home. In 1944 they sold their business in order to dedicate themselves to their farming enterprise. Plans for their home were completed in 1945, construction began in 1948, they occupied Cedar Rock in 1950. They continued investing, and by 1973, they managed 18 farms totaling 5000 acres. Postmarked: "Quasqueton Oct 14 1910 Iowa."


Size: 5.5 x 3.4

S#:
0094.100.0623
   
Date: 1951

Title: Sixty Years of Living Architecture, Palazzo Strozzi, Florence, 1951. .

Description: Display #109: "Walter House, Quasqueton, Iowa, 1949." Part of a set of forty B&W photographs by Ancillotti & Co., of the exhibition "Sixty Years of Living Architecture" held in Florence, Italy, 1951. "Sixty Years of Living Architecture: The Work of Frank Lloyd Wright" was a traveling exhibition of Wright's work, consisting of models, large photographs and original drawings. A Preview of the exhibition was held in Philadelphia at Gimbel Brothers Gallery in January, 1951. The world wide tour opened in Palazzo Strozzi Florence, Italy in June, 1951. Ancillotti & Company photographed many of the models and also documented the large photographs that were on display. Published in
Sixty Years of Living Architecture: The Work of Frank Lloyd Wright, Moser, 1952, p.70

Size: Original 9 x 7.25 B&W photograph.

S#: 0857.51.0221 -40
   
Date: 1954

Title: Sixty Years of Living Architecture Exhibition, Los Angeles 1954 (Frank Lloyd Wright Foundation project #5427).

Description: A traveling exhibition of Wright's work, consisting of models, photographs and original drawings. A Preview of the exhibition was held in Philadelphia (January 1951). The world wide tour opened in Palazzo Strozzi Florence, Italy (June 1951). In "Sixty Years" (New York), Wright notes that from Florence the Exhibition traveled to "Switzerland, France, German and Holland". The Exhibition catalogs are dated: Paris (April 1952), Zurich (End of May 1952), Munich (May 16 - June 15, 1952), and Rotterdam (dated June 1, 1952). After two years in Europe the exhibition crossed the Atlantic to Mexico City, then to New York (1953). After an exhibition in Los Angeles, June, 1954, the final exhibition took place in Chicago, October, 1956. The Los Angeles exhibition premiere was held at Barnsdall Park's Municipal Art Center on June 1, 1954, then open to the public from June 2 to July 11, and was extended to July 25, 1954. A temporary pavilion, similar to the pavilion in New York, was attached to the line of kennels that reached from the house to the garage. Exhibition Panel #109. "Walter House, Quasqueton, Iowa 1949." Sixty Years of Living Architecture Exhibition, Los Angeles 1954. Interior view of the Walter House. Photographed by Loch Crane in June, 1954.

Size: B&W 2.25" negative, high res scan, and 8 x 8 B&W photograph

S#:
1045.42.1116-36
   
Date: 1982

Title: Cedar Rock - The Walter Residence - Quasqueton, Iowa  (Soft Cover)

Author: Iowa Department of Natural Resources

Description: Descriptive booklet describing the Walter Residence, Cedar Rock and its history. Includes six photographs.  Two Copies. (First Edition)

Size:

Pages: 12

ST#: 1982.16.0804, 1982.27.0405

   
Date: 1988

Title: Lowell Walter Residence, Cedar Rock, Quasqueton, Iowa, 1988 (1945 - S.284-5).

Description: 1) Set of four photographs of the Lowell Walter Residence. View of the Walter Residence from the West. Designed by Frank Lloyd Wright in 1945, completed in 1950. Built on a limestone bluff overlooking the Wapsipinicon River. The original design for the Walter Residence was originally designed by Frank Lloyd Wright in 1944-1945 for the Ladies Home Journal, the Opus 497 "Glass House" Model and Plan was published in the June 1945 issue. At first glance this image looks like a detail of Broadacre City, but upon further study, it was discovered to be a detail of the model built for the Ladies Home Journal in 1945. Photographer unknown.

Size: Original 5 x 3.5 Color photograph.

ST#:
1988.139.0623-1
   
Date: 1988

Title: Lowell Walter Residence, Cedar Rock, Quasqueton, Iowa, 1988 (1945 - S.284-5).

Description: 2) Set of four photographs of the Lowell Walter Residence. View of Frank Lloyd Wright's signature red tile near the entrance to the Walter Residence. Designed by Frank Lloyd Wright in 1945, completed in 1950. Built on a limestone bluff overlooking the Wapsipinicon River. The original design for the Walter Residence was originally designed by Frank Lloyd Wright in 1944-1945 for the Ladies Home Journal, the Opus 497 "Glass House" Model and Plan was published in the June 1945 issue. At first glance this image looks like a detail of Broadacre City, but upon further study, it was discovered to be a detail of the model built for the Ladies Home Journal in 1945. Photographer unknown.

Size: Original 5 x 3.5 Color photograph.

ST#:
1988.139.0623-2
   
Date: 1988

Title: Lowell Walter Residence, Cedar Rock, Quasqueton, Iowa, 1988 (1945 - S.284-5).

Description: 3) Set of four photographs of the Lowell Walter Residence. View of the interior l;iving room. Designed by Frank Lloyd Wright in 1945, completed in 1950. Built on a limestone bluff overlooking the Wapsipinicon River. The original design for the Walter Residence was originally designed by Frank Lloyd Wright in 1944-1945 for the Ladies Home Journal, the Opus 497 "Glass House" Model and Plan was published in the June 1945 issue. At first glance this image looks like a detail of Broadacre City, but upon further study, it was discovered to be a detail of the model built for the Ladies Home Journal in 1945. Photographer unknown.

Size: Original 5 x 3.5 Color photograph.

ST#:
1988.139.0623-3
   
Date: 1988

Title: Lowell Walter Residence, Cedar Rock, Quasqueton, Iowa, 1988 (1945 - S.284-5).

Description: 4) Set of four photographs of the Lowell Walter Residence. View of the interior l;iving room. Designed by Frank Lloyd Wright in 1945, completed in 1950. Built on a limestone bluff overlooking the Wapsipinicon River. The original design for the Walter Residence was originally designed by Frank Lloyd Wright in 1944-1945 for the Ladies Home Journal, the Opus 497 "Glass House" Model and Plan was published in the June 1945 issue. At first glance this image looks like a detail of Broadacre City, but upon further study, it was discovered to be a detail of the model built for the Ladies Home Journal in 1945. Photographer unknown.

Size: Original 5 x 3.5 Color photograph.

ST#:
1988.139.0623-4
   
   
   
ALVIN MILLER RESIDENCE (1946 - S.289)
   
Date: 1952

Title: Alvin Miller Residence, Charles City, Iowa, Circa 1952 (1946 - S.289).

Description: View of the front of the house, the Southeast elevation. The carport is on the left. The Gallery and bedrooms are in the center, the Entrance is to the right. A Study and Guest Room is to the right of the entrance. The river bank is on the far right out of the picture. Designed in 1946, Frank Lloyd Wright originally specified brick, and designed a duplex for Doctors Alvin and William Miller with a clinic located between the two units. Only the single unit was built, and it was constructed of limestone instead of brick. Located on a river, the retaining wall and stairs to the boat inlet on the river bank became an important design element. Label pasted to verso: "W 20, USA Arch. The University Gallery. Northrop Memorial Auditorium, University of Minnesota. Minneapolis, Minnesota. Wright, Frank Lloyd. American, 1869--. Charles City, IA.  1952. Res. Miller Entrance view. Photo by Andrews Photo 1519." Additional photographs are published in
Architecture in Chicago & Mid-America, Andrews, 1968, p.137. Photographed by Wayne Andrews. Acquired from the archives of the University of Minnesota.

Size: Original 10 x 8 B&W photograph.

S#:
0910.52.0420
   
Date: Circa 1953 

Title: Alvin Miller Residence (1946 - S.289), Charles City, Iowa. Circa 1953.

Description: Viewed from the hall leading to the Workspace (kitchen). Was designed as a small one bedroom home, built on the banks of the Red Cedar River. Built of natural stone and cypress. Built-in cabinets and shelves are on the left. The Dining Room table is built into the stone wall in the center. Dining Room chairs were designed by Wright. A coffee table is built into the wall in the background. The ceiling above the Living Room is raised and clerestory windows allow in additional non-direct light. Two sets of floor to ceiling doors and two singles open outward in the Living Room on the right. Although the home was only 1,000 square feet, Wright featured it in "The Natural House". This photograph appeared on page 192. Also published in House & Home - April1955, pages 120-121. Photographed by Marc Neuhof. Gift from Randolph C. Henning. Wright Chairs.

Size: Original 10 x 8 B&W photograph.

S#: 0987.45.06133

   
   
   
MINNESOTA
 
There are a total of 13 homes and buildings located in Minnesota.
  BULBULIAN    ELAM    FASBENDER    KEYS    LAFOND    LINDHOLM RESIDENCE    LINDHOLM STATION    LITTLE II 
  LOVNESS    MCBEAN    NEILS    OLFELT    WILLEY  
 
  OTHER HOMES 
   
Date: 2015

Title: Minnesota Modern. Architecture and Life at Midcentury (Hard Cover DJ) (Published byUniversity of Minnesota Press, Minneapolis, London)

Author: Millet, Larry

Description: Dust Jacket: “A History Lesson as entertaining as it is enlightening, Minnesota Modern provides a close-up view of a style that penetrated the social, political, and cultural machinery of the times. Extending from modest suburban ramblers and ranch houses to the grandest public and commercial structures, Midcentury Modernism, the new style of architecture that swept through much of America from 1945 to the mid-1g6os, expressed new ways of thinking about how to live, work, and play in communities that sprang up as thousands of military members returned from World War II.
       Renowned Minnesota architecture critic and historian Larry Millett describes the style's sources in the work of European masters such as Ludwig Mies van der Rohe and Walter Gropius, as well as the Midwestern innovations of Frank Lloyd Wright, and its refinement at the University of Minnesota under the guidance of Ralph Rapson and other modernists.”
       Includes many references to Frank Lloyd Wright as-well-as examples of his work. Also includes a section on the S. P. Elam Residence, pp.98-107. Original list price $49.95. (First Edition)

Size: 11.25 x 9.25

Pages: Pp 366

ST#:
2015.51.0226
   
   
   
HERMAN T. FASBENDER MEDICAL CLINIC (1957 - S.424)
   
Date: Circa 1966

Title: Glass dish. Herman T. Fasbender Medical Clinic, Circa 1966 (1957 - S.424).

Description: Thomas Olson, an apprentice with Frank Lloyd Wright from 1952 to 1962, and friend of Dr. Werner Fasbender Jr., encouraged the doctor to commission Wright to design his medical clinic. Fasbender's father, Herman Fasbender Sr., was also a doctor in Hastings. When Dr. Fasbender Jr. outgrew the space in 1966, he sold the clinic to Production Credit Association. In 1970, Production Credit sold the buildings to dentists John Thibodo and J. K. Kugler. Smoked glass dish produced by the Production Credit Association. Golf and red.

Size: 6.75 x 5.

S#: 1679.11.0915

   
   
   
KEYS RESIDENCE (1950 - S.321)
   
Date: 1952

Title: Thomas E. Keys Residence, Rochester, Minnesota, 1952 (1950 - S.321).

Description: Viewed from the Southeast. Designed by Frank Lloyd Wright in 1950. The carport is on the far left. The utility room is between the entrance and the carport. The Living room is between the entrance and the fireplace mass, and the bedrooms are on the right. Wright's first design for the house in 1947 was totally different. It utilized the poured stone masonry, much like Taliesin West. Frank Lloyd Wright Monograph, 1942-1950, Pfeiffer, 1988/1990, p.164. To reduce construction costs, this second design utilized concrete blocks, and then was backfilled with berms just below the window level. Wright also designed this second version with a combination of a hipped and flat roof. Mounted to gray board. Label pasted to board: : "West 20, US Arch. Wright, Frank L. Rochester, Minn. Keys Res. 1952. Exterior. Photo by Andrews. 1538." Photographed by Wayne Andrews. One copy acquired from the archives of the University of Minnesota. One copy acquired from the archives of the Indiana University. Original 10 x 8 and 9.5 x 7.5 B&W Photographs.

Size: Original 10 x 8 B&W Photograph.

S#:
0910.55.0420, 0910.68.0920
   
   
   
DONALD AND VIRGINIA LOVNESS RESIDENCE (1955 - S.391)
   
Date: 2020

Title: Growing Up Wright. Building a dream by hand with the world's greatest architect. (Soft Cover. Author's Proof) (Published by River Place Media, Inc., Stillwater, MN)

Author: Lovness, Lonnie

Description: Publisher's description: "The story of Don and Virginia Lovness, who built two Frank Lloyd Wright-designed homes by hand. Wright called them his "Do-it-yourself couple", and they became close to Mrs. Wright and the entire Taliesin Fellowship over several decades. They were avid proponents of Wright's philosophies and became noted collectors of Oriental and re-Columbian art. Don re-created the Midway Garden "sprites", built Wright-designed furniture, and was instrumental in saving the Little house in Minnesota. Their close friendship with Wes Peters, John Howe, Aaron Green, Edgar Tafel and others provide wonderful stories, gleaned from interviews, Virginia's extensive notes and daughter Lonnie's family memories. Lonnie tells the story in 288 pages with over 600 photos. A final chapter details the extensive restoration of both houses and construction of a third Wright design on the property in 2018. Over 600 photos and drawings." We provided two photographs for this volume. Gift from the author. (First Edition).

Size: 9 x 9

Pages: Pp 287

ST#: 2020.06.0720
   
Date: 2020

Title: Growing Up Wright. Building a dream by hand with the world's greatest architect. (Hard Cover DJ) (Published by River Place Media, Inc., Stillwater, MN)

Author: Lovness, Lonnie

Description: Publisher's description: "The story of Don and Virginia Lovness, who built two Frank Lloyd Wright-designed homes by hand. Wright called them his "Do-it-yourself couple", and they became close to Mrs. Wright and the entire Taliesin Fellowship over several decades. They were avid proponents of Wright's philosophies and became noted collectors of Oriental and pre-Columbian art. Don re-created the Midway Garden "sprites", built Wright-designed furniture, and was instrumental in saving the Little house in Minnesota. Their close friendship with Wes Peters, John Howe, Aaron Green, Edgar Tafel and others provide wonderful stories, gleaned from interviews, Virginia's extensive notes and daughter Lonnie's family memories. Lonnie tells the story in 288 pages with over 600 photos. A final chapter details the extensive restoration of both houses and construction of a third Wright design on the property in 2018. Over 600 photos and drawings." We provided two photographs for this volume. Original list price $45.00. Gift from the author. (First Edition).

Size: 9.25 x 9.25

Pages: Pp 287

ST#: 2020.07.0720
   
   
   
HENRY J. NEILS RESIDENCE (1949 - S.314)
 
Date: 1952

Title: Henry J. Neils Residence, Minneapolis, Minn. Exterior 1952 (1949 - S.314).

Description: View of the exterior from the Southeast. Frank Lloyd Wright designed in Neils House in 1949. The bedrooms are on the left, the fireplace is in the center, the living room is on the right. Photographed by Wayne Andrews and published in Architecture in Chicago & Mid-America, Andrews, 1973, P.131. Label pasted to verso: "The University Gallery. Northrop Memorial Auditorium, University of Minnesota. Minneapolis, Minnesota. Artist: Wright, Frank Lloyd. American, 1869. Location: Minneapolis, Minn. 1952. Res. Neils, Grand View. Photo By Andrews. #1531." Hand written on verso: "1531." Frank Lloyd Wright visited the Neils in 1954 and 1956. Photographed by Wayne Andrews.

Size: Original 10 x 8 B&W photograph.

S#:
0910.45.0220
   
Date: 1952

Title: Henry J. Neils Residence, Minneapolis, Minn. Living Room 1952 (1949 - S.314).

Description: View of the Southeast corner of the Living Room. Frank Lloyd Wright designed in Neils House in 1949. The ceiling soars upward. The seating along the wall is built-in. The two tables in the center, short and tall, were designed by Frank Lloyd Wright. fireplace is in the center, the living room is on the right. Photographed by Wayne Andrews and published in Architecture in Chicago & Mid-America, Andrews, 1973, P.131. Label pasted to verso: "The University Gallery. Northrop Memorial Auditorium, University of Minnesota. Minneapolis, Minnesota. Artist: Wright, Frank Lloyd. American, 1869. Location: Minneapolis, Minn. 1952. Res. Neils Window Seat. Photo By Andrews. #1535." Hand written on verso: "1535." Frank Lloyd Wright visited the Neils in 1954 and 1956. Photographed by Wayne Andrews.

Size: Original 10 x 8 B&W photograph.

S#: 0910.46.0220
   
Date: 1952

Title: Henry J. Neils Residence, Minneapolis, Minn. Living Room 1952 (1949 - S.314).

Description: View of the Living Room Fireplace. Frank Lloyd Wright designed in Neils House in 1949. The seating along the wall to the left is built-in. The fireplace mass is cantilevered out over the opening. The stairs up to the main portion of the house is in the background just to the right of the fireplace. The Workspace is to the right. Label pasted to verso: "The University Gallery. Northrop Memorial Auditorium, University of Minnesota. Minneapolis, Minnesota. Artist: Wright, Frank Lloyd. American, 1869. Location: Minneapolis, Minn. 1952. Res. Neils Fireplace. Photo By Andrews. #1536." Hand written on verso: "1536." Frank Lloyd Wright visited the Neils in 1954 and 1956. Photographed by Wayne Andrews.

Size: Original 10 x 8 B&W photograph.

S#: 0910.47.0220
   
Date: 1953

Title: Henry J. Neils Residence 1953 (1949 - S.314).

Description: View of the Living Room. Floor to ceiling windows and doors are on the left. Built-in seating is to the right. There is a small Wright designed table near the built-in seating, and two Wright designed hassocks or seats. Note the round kettle hanging in the fireplace. Label pasted to verso: "The Solomon R. Guggenheim Museum, New York. The Neils House - Minneapolis, Minnesota." Stamped on verso: "Credit Photograph to P. E. Guerrero." and "Filed Oct 30 1953." Photographed by Pedro Guerrero. 9 photographs by Guerrero, of the Neils Residence were published in the November 1953 issue of House & Home. This image was printed in color p.125.

Size: Original 10 x 8 B&W photograph.

S#:
0987.96.0218
   
Date: 1954

Title: Wright visits Henry J Neils Residence 1954 (1949 - S.314).

Description: Frank Lloyd Wright speaks at the University of Minnesota, October 5, 1954, then visits the Neils Residence. Label pasted to verso: "Frank Lloyd Wright, center... house guest of Mr. and Mrs. Henry J. Neils (Niles) of 2801 Burnham Blvd. He's chairman of the board and treasurer, Flour City Ornamental Iron Company. Date: 5 October 54. Time 10:30-10:45. About: Frank Lloyd Wright in town for lecture at University of Minnesota." Stamped on verso: "Oct 7 1954."

Size: Original 10 x 8 B&W photograph.

S#: 1045.26.1114

   
Date: 1954

Title: Wright visits Henry J. Neils Residence 1954 (1949 - S.314).

Description: Frank Lloyd Wright speaks at the University of Minnesota, October 5, 1954, then visits the Neils Residence. Label pasted to verso: "Made by: Ted. Date: 5 October 54. Time: 1030-1045. Ordered by: pafiolis. Where Made: 2801 Burnham Blvd. What is it About? Frank Lloyd Wright in town for lecture at University of Minnesota. Names: Frank Lloyd Wright - stands in front of one of 3,500 fireplaces he's designed into 670 projects." Stamped on label: "Oct 6-1954."

Size: Original 10 x 8 B&W photograph.

S#: 1045.39.0416

   
Date: 1956

Title: Frank Lloyd Wright stands next to aerial view of Minneapolis, November 26, 1956.

Description: Frank Lloyd Wright speaks his mind in Minneapolis. Clipping pasted to verso: "Architect Frank Lloyd Wright  looked at Minneapolis Monday (11/26/56). Shown with aerial photo at Minneapolis-Honeywell hanger. Architect speaks his mind." Stamped on verso: "Donald Black. Nov 26 1956." He also visited the Henry J. Neils Residence (1949 - S.314). Photographed by Donald Black. Acquired from the archives of the Minneapolis Tribune.

Size: 10 x 8 B&W photograph.

S#: 1147.66.0115

   
Date: 1956

Title: Citizens League of Minneapolis 1956.

Description: Frank Lloyd Wright, Teacher and Architect. Program for the 5th Annual Meeting of the Citizens League of Minneapolis and Hennepin County. Leamington Hotel, November 27, 1956. Biographical Sketch: One of the founders of modern architecture, Frank Lloyd Wright is regarded throughout the world as one of the greatest architects of the 20th century. "If I were to apply genius to only one living American", wrote the late Alexander Woollcott, some time ago, "I would have to save it up for Frank Lloyd Wright"... Includes two photographs and one illustration.

Size: 11 x 16 folded to 5.5 x 8.125. Slip sheet 5.25 x 7.125.

S#: 1147.67.0315

   
Date: 1956

Title: Wright visits Henry J. Neils Residence (1949 - S.314).

Description: Label taped to verso: "Date: Nov 27, 1956. Subject: Frank Lloyd Wright leaving the house of Henry Neils, 2801 Burnham Blvd, Minneapolis, Minn. Photographer: Paul Siegel." Reported in the November 28, 1956, Minneapolis Tribune, (yesterday) "Frank Lloyd Wright, the 87-year-old champion of American modernist architecture, visited the Twin Cities to address the annual meeting of the Citizens League of Minneapolis and Hennepin County. He picked up ammunition for his speech during a tour earlier in the day, visiting the new Southdale shopping center in Edina, Prudential building in Minneapolis and other landmarks. He didn't have many kind things to say about anything, including our climate. "Minneapolis is just too far north," he said. But he did praise the Twin Cities" lakes and parks as a "beautiful gift from nature." And he managed to recall "with a chuckle" his 1926 visit to Minneapolis during which he landed in jail in a dispute with his estranged wife. "Nothing came of it," he said, somewhat cryptically." He visited the Neils Residence during his tour.

Size: Original 9 x 7.25 B&W photograph.

S#: 1147.49.0613

   
Date: 1956

Title: Wright at 89. Circa 1956.

Description: Wright visits Henry J. Neils Residence (1949 - S.314). Stamped on verso: "Paul Siegel," and "Nov 27 1956." Published in the November 28, 1956, Minneapolis Tribune, "Frank Lloyd Wright, the 87-year-old champion of American modernist architecture, visited the Twin Cities to address the annual meeting of the Citizens League of Minneapolis and Hennepin County. He picked up ammunition for his speech during a tour earlier in the day, visiting the new Southdale shopping center in Edina, Prudential building in Minneapolis and other landmarks. He didn't have many kind things to say about anything, including our climate. "Minneapolis is just too far north," he said. But he did praise the Twin Cities" lakes and parks as a "beautiful gift from nature." And he managed to recall "with a chuckle" his 1926 visit to Minneapolis during which he landed in jail in a dispute with his estranged wife. "Nothing came of it," he said, somewhat cryptically." He visited the Neils Residence during his tour.

Size: Original 10 x 8 B&W photograph.

S#: 1147.58.0514

   
Date: 1956

Title: Frank Lloyd Wright visits Henry J. Neils Residence 1956 (1949 - S.314).

Description: Wright sits in front of fireplace. Kettle in background. Clipping pasted to background: "A Tour and a Lecture. For Him Wright Is Kind To City. By Frank Murray. Minneapolis Star Staff Writer. Frank Lloyd Wright, dean of American architecture and ancient foe of the "city concept," was taking a good long look at Minneapolis today. In a manner of speaking, you could say he was praising it with faint damns - and quite a few explosive ones. (Caption) Frank Lloyd Wright in Henry Neils" Home. Kettle in background was his idea." Stamped on verso: "1956 Nov 27."

Size: 8 x 9.75 B&W photograph.

S#: 1205.62.1214

 

 

 

   
Date: 1971

Title: Henry J. Neils Residence 1971 (1949 - S.314).

Description: View of the Neils Residence from the South. Label pasted to verso: "Star Tribune. Henry Neils Res., Note: the address is 2801 Burnham Blvd." Hand written on label: "Designed by
Frank Lloyd Wright." Stamped on verso: "Donald Black. May 6 1971." Photographed by Donald Black. Acquired from the archives of the Minneapolis Star Tribune.

Size: Original 11 x 7 B&W photograph.

S#:
1867.19.0918
   
   
   
WILLEY RESIDENCE, MINNEAPOLIS, MINNESOTA (1933 - S.229)
   
Date: 1932

Title: Vintage 4" x 3.25" Magic Lantern Slide of the Malcolm E. Willey House Model, Scheme I, 1932 (FLLW#3204).

Description: Model and floor plans for the Malcolm E. Willey House, Scheme I, designed by Frank Lloyd Wright in 1932. It remained a project, but the Willeys did build Scheme II. This Model was exhibited at the Broadacre Exhibition held at the Industrial Arts Exhibition, New York, held in 1935. This model may have been created at late as 1933-34. Label affixed to face: “Wright, Frank Lloyd, 1867-1959. 1932. Project for Malcolm E. Willey at Minneapolis, Minn., model exhibited at Museum of Modern Art, N.Y., 1940 and plans. 48262L. Art. Dept. Smith College.” Acquired from the Art Department at Smith College. Magic lantern slide 4" x 3.25", Transparency:

Size: 2.5" x 2.6"

S#:
0361.30.1125
   


 Left: Model for the Malcolm E. Willey
 House, Scheme I,
   


 Left: Floor plan for the Malcolm E. Willey
 House, Scheme I,
   
Date: 1934

Title: Malcolm E. Willey Residence, Minneapolis, Minnesota, Plans (1933 - S.229).

Description: Set of eight plans for the Malcolm E. Willey Residence, FLLW #3401. Designed in 1933 by Frank Lloyd Wright. Wright actually designed two houses for Willey, Scheme # I and #II. Scheme #1 was designed in 1932, and is the first house illustrated in The Natural House, 1954, Wright, p.68-69. A model of Scheme #1 was produced and became part of the traveling exhibition... Continue...

Size: Eight sheets, 42" x 23"

S#:
0376.18.1224 (1-8)
   


 See Additional Details...
   


 See Additional Details...
   
Date: Circa 1934

Title: Willey Residence, Scheme II, 1934.

Description: Part of a set of six photographs. The drawing for Willey Residence Scheme II was Wright's Project #3401, which would indicate drawings were completed in 1934. Walls are complete, trellis is under construction. The roof of the master bedroom in the background is complete. Malcolm and Nancy Willey moved in to their new house in December 1934. This image of the set of six helps date the other five. (A thank you to Robert Barros for identifying this image.)

Size: Original 7 x 5 B&W photograph.

S#: 0370.08.0514

   
Date: 1934

Title: Malcolm E. Willey House, Minneapolis, Minnesota, 1934 (1933 - S.229).

Description: View of the Willey Residence from the Southwest. Designed by Frank Lloyd Wright in 1933. It was constructed of brick with cypress trim. Located on a bluff over looking the Mississippi River, the view was marred by the construction of I-94 on its Southern border. This appears to be taken near the completing of the house. Grass has not yet been planted. Stairs and the Terrace have not yet been completed. An empty Coke bottle sits between the detached garage and the house. The wall that runs along the East side of the property line has not been installed. Mounted to gray board. Label pasted to board: "182. M666. B12W. 41. Minneapolis, Minn. House of Malcolm Willey. Front Elevation. View showing the semi detached garage at extreme left. The wall which cuts off the view to the east has not yet been built in this view. 1934. Architect: Frank Lloyd Wright." Small label pasted to verso: "Gift of B. Simms." Caption pasted to verso: "This house has no attic, and no excavation excepting under the kitchen. Storage room is over the garage. In the skylights, French doors to the terrace, and the odd triangular windows between the eaves and the north wall, there has been an abundant use of glass; designed to bring the outside in. The glass screen separating the kitchen from the dining and living room is to create the feeling of one whole unit. All lighting is indirect. The building is 90 feet from one side to the end of the garage at the other." Acquired from the archives of the University of Minnesota.

Size: Original 6.5 x 4.5 B&W Photograph.

S#:
0376.04.0420
   
Date: 1934

Title: Malcolm E. Willey House, Minneapolis, Minnesota, 1934 (1933 - S.229).

Description: View of the Willey Residence Dining Room. Designed by Frank Lloyd Wright in 1933. It was constructed of brick with cypress trim. Located on a bluff over looking the Mississippi River, the view was marred by the construction of I-94 on its Southern border. One detail that is of interest is the brick floor. The brick floor is consistent with the construction of the brick walls. The brick flooring continues to the exterior patios and stairs. The furniture and built-ins were designed by Frank Lloyd Wright. Label pasted to board: "182. M666. B12W. 75. Minneapolis, Minn. House of Malcolm Willey. Dining Unit in the Main Room. Square table in center, cupboards and shelves are all designed as a part of the house. Behind the shelves and glass partition is the kitchen. 1934. Architect: Frank Lloyd Wright." Small label pasted to verso: "Gift of B. Simms." Published in In The Nature of Materials, 1942, Plate 318. Acquired from the archives of the University of Minnesota. See additional Wright furniture...

Size: Original 6.5 x 4.5 B&W Photograph.

S#:
0376.05.0420
   
Date: 1937

Title: Malcolm E. Willey Residence Circa 1937 (1933 - S.229).

Description: Exterior view of from the Southeast. The carport is on the far left, Living Room in the center, Bedrooms on the far right. Designed in 1933 by Frank Lloyd Wright for Malcolm Willey and completed in 1934. Willey was an administrator at the University of Minnesota. This Usonian design was actually the second design Wright created for the Willeys. Copy slide of photograph published in the January 1938 issue of Architectural Forum, p.31. Caption: "View made in early November of Malcolm Willey House... Looking to the North, Showing glazed doors to the living room and the wood trellis over." Also published in The Natural House, Wright, 1954, p.76; and In The Nature of Materials, Hitchcock, 1942, plate 316.

Size: Original 4 x 3.25 Magic Lantern Glass Slide.

S#:
0429.43.1118
   
Date: 1937

Title: Malcolm E. Willey Residence Circa 1937 (1933 - S.229).

Description: Interior view of Living Room Fireplace from the Southwest. The Dining Area is to the left out of frame. The Gallery, leading to the Bedrooms is in the center. Designed in 1933 by Frank Lloyd Wright for Malcolm Willey and completed in 1934. Willey was an administrator at the University of Minnesota. This Usonian design was actually the second design Wright created for the Willeys. Copy slide of photograph published in the January 1938 issue of Architectural Forum, p.30. Caption: "Red brick fireplace in living room of Malcolm Willey House... Same alternating brick courses in floors and walls... Iron crane and inserted red tile." Also published in The Natural House, Wright, 1954, p.75.

Size: Original 4 x 3.25 Magic Lantern Glass Slide.

S#:
0429.42.1118
   
Date: 1951

Title: Sixty Years of Living Architecture, Palazzo Strozzi, Florence, 1951.

Description: Display #53: "Project for the Willey House, Minneapolis, Minn., 1932. Model for a "Usonian" house." Text bottom left: "Fot. Ancillotti & C. - Milano - Via Solferino, 3 - Tel. 89.85.84." Part of a set of forty B&W photographs by Ancillotti & Co., of the exhibition "Sixty Years of Living Architecture" held in Florence, Italy, 1951. "Sixty Years of Living Architecture: The Work of Frank Lloyd Wright" was a traveling exhibition of Wright's work, consisting of models, large photographs and original drawings. A Preview of the exhibition was held in Philadelphia at Gimbel Brothers Gallery in January, 1951. The world wide tour opened in Palazzo Strozzi Florence, Italy in June, 1951. Ancillotti & Company photographed many of the models and also documented the large photographs that were on display.

Size: Original 9 x 7.25 B&W photograph.

S#: 0857.51
.0221 -12
   
Date: 1953

Title: Malcolm E. Willey Residence 1953 (1933 - S.229).

Description: Designed in 1933 by
Frank Lloyd Wright for Malcolm Willey and completed in 1934. Willey was an administrator at the University of Minnesota. This Usonian design was actually the second design Wright created for the Willeys. Stamped on Verso: "Oct 14 1953." Wiley sold the home in 1963. Clipping pasted to verso (1963): "A house in Minneapolis, one of Frank Lloyd Wright's most noted designs, was sold recently for far less than it could have brought. It's not that the late architect's work is now down-graded; on the contrary, although he was been dead more than four years, interest in his designs is as acute as ever. The house at 255 S.E. Bedford St. Was sold for a relative song because the original owner, Malcolm M. Willey, former academic vice president at the University of Minnesota, was mainly interested in finding someone who loved it to live in it." Stamped on verso: "Engraving. 1963 Nov 13." Also stamped on verso: "Artists. 1963 Nov 13." Clipping pasted to verso stamped Jul 30 1968: "There are two housed designed by Frank Lloyd Wright in Minneapolis and seven others throughout the state. The house pictured, built in 1934, is at 255 S.E. Bedford St." Clipping pasted to verso stamped Nov 17 1968: "Bedford St. House: "It Dramatizes Distant Vistas." "

Size: Original 10 x 7.75 B&W Photograph.

S#:
0987.95.1217
   
Date: 1953

Title: 2) #53: Willey House Model (1), Project for the Willey House, Minneapolis, Miss, 1932.

Description: Malcolm Willey House, Scheme 1 (project 1932). Although not called a Usonian design in 1932, it could be called an early forerunner to the design. The description in the 1953 "Sixty Yeats" (New York) catalog is "Model for a "Usonian" house." Scheme 1 was two stories. The Malcolm Willey House (1933 - S.229), Scheme 2, built in 1933, was one story and built three years before the Jacobs Residence (1936 - S.234) which many call Wright's first Usonian House.

Size: Faded 4.5 x3.25 sepia tone photograph.

S#: 0987.50.0813

   
Date: 1953

Title: 3) #53: Willey House Model (2), Project for the Willey House, Minneapolis, Miss, 1932.

Description: Malcolm Willey House, Scheme 1 (project 1932). Although not called a Usonian design in 1932, it could be called an early forerunner to the design. The description in the 1953 "Sixty Yeats" (New York) catalog is "Model for a "Usonian" house." Scheme 1 was two stories. The Malcolm Willey House (1933 - S.229), Scheme 2, built in 1933, was one story and built three years before the Jacobs Residence (1936 - S.234) which many call Wright's first Usonian House.

Size: Faded 4.5 x3.25 sepia tone photograph.

S#: 0987.51.0813

   
Date: 1984

Title: Malcolm E. Willey Residence, Minneapolis, Minnesota, Circa 1984 (1933 - S.229).

Description: 1) Not dated. Exterior view of from the Southeast. Although not considered Wright's first "Usonian" house, it has many of the characteristics. It proceeded the Jacobs I by three years. The carport is on the far left, Living Room in the center, Bedrooms to the far right. Designed by Frank Lloyd Wright in 1933 for Malcolm Willey and completed in 1934. Willey was an administrator at the University of Minnesota. This design was actually the second design Wright created for the Willeys. Text on sleeve: "Mod: Arch: US: Wright: Malcolm Willy House. Ext. 1934. Minneapolis, Minn. Sandak AC 443/84." Set of two 35mm Color Slides.

Size: Original 35mm Color Slides and 7 x 10 High Res Digital Image.

ST#:
1984.59.0121 -1
   
Date: 1984

Title: Malcolm E. Willey Residence, Minneapolis, Minnesota, Circa 1984 (1933 - S.229).

Description: Not dated. View of the Living Room fireplace from the from the West. Although not considered Wright's first "Usonian" house, it has many of the characteristics. It proceeded the Jacobs I by three years. The iron brackets within the fireplace includes a red square. A pair of Nakomis and Nakoma sculptures is setting above the entrance to the Gallery (Hall). Designed by Frank Lloyd Wright in 1933 for Malcolm Willey and completed in 1934. Willey was an administrator at the University of Minnesota. This design was actually the second design Wright created for the Willeys. Text on sleeve: "Wright, Frank Lloyd: Malcolm Willy House. L.R. 1934. Minneapolis, Minn. AC 444." Set of two 35mm Color Slides.

Size: Original 35mm Color Slides and 7 x 10 High Res Digital Image.

ST#: 1984.59.0121 -2
   
Date: 2004

Title: The Willey House, Frank Lloyd Wright Architect (Soft Cover) (Published by Wright at Home LLC., Minneapolis, Minnesota)

Author: Wright at Home LLC.

Description: Soft cover flip book, not paginated. Includes 17 plans and 39 color construction drawings showing buildup of structural elements. Back cover: "Dubbed "The Garden Wall" by Wright, the single-story brick house is nestled in the Northwest corner of a lot situated atop a bluff sloping to the south. Its outstretched walls shelter its inhabitants from the surrounding neighborhood and create a private garden that opens up onto an uninterrupted vista to the south and the river valley below. The house epitomizes the spirit of Wright's organic architecture through its melding of client needs, plan, site and a palette of simple materials: brick, cypress, glass, plaster and concrete. This flip book provides an inside look into the design and construction of this small but pivotal house."
 (First Edition)

Size: 6.5 x 2.5

Pages: Pp 128

ST#:
2004.93.0622
   
   
   
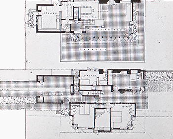
WILLEY RESIDENCE PLANS (1934)
   
Malcolm E. Willey Residence, Minneapolis, Minnesota, Plans (1933 - S.229). Set of eight plans for the Malcolm E. Willey Residence, FLLW #3401. Designed in 1933 by Frank Lloyd Wright. Wright actually designed two houses for Willey, Scheme # I and #II. Scheme #1 was designed in 1932, and is the first house illustrated in The Natural House, 1954, Wright, p.68-69. A model of Scheme #1 was produced and became part of the traveling exhibition Sixty Years of Living Architecture, S#0857.51.0221 -12, S#0987.50.0813, S#0987.51.0813. It remained a project, but Wright developed the design for his friend Lloyd Lewis.
       Wright designed Scheme #2 in 1933, and photographs of the completed house were published in The Natural House, p.69-76. Wright wrote, "The plan and photographs shown on the following pages are of "The Garden Wall': house built in 1934 for Dean Malcolm Willey-Nancy Willey, Superintendent. Cost: $10,000. A well-protected brick house built upon a brick paved 3 in. concrete mat laid down over well drained bed of cinders and sand-the concrete mat jointed at partitions. To develop the nature of the materials a sand mold brick course alternates with a course of paving brick, the exterior cypress is left to weather and the interior
  cypress is only waxed.
       "The house wraps around the northwest corner of a lot sloping to the south -- a fine vista in that direction. The plan protects the Willeys from the neighbors, sequesters a small garden and realizes the view to the utmost under good substantial shelter. Notwithstanding the protests of the builder and unusually many kind friends, the fireplace draws perfectly and the mat is perfectly comfortable in 30° below zero weather. Nor does the frost show upon the inside of the outside walls. The house emphasizes the modern sense of space by vista inside and outside, without getting at all "modernistic." There is a well balanced interpenetration (that is to say, sense of proportion) of the sense of shelter with this sense of space, the sense of materials and the purpose of the whole structure in this dwelling. It is well constructed for a life of several centuries if the shingle roof is renewed in twenty-five years or tile is substituted. Perhaps this northern house comes as near to being permanent human shelter as any family of this transitory period is entitled to expect." Wright - The Natural House, p.69.
       Set of 8 copies of the full size plans for the Willey Residence.
   
   1) PLAN & FLOOR PLAN    2) BASEMENT PLAN    3) GROUND & FIRST FLOOR PLAN    4) ELEVATIONS/SECTION PLANS 
  5) ELEVATION/SECTION PLANS    6) DETAILS SHEET 1    7) DETAILS SHEET 2    8) DETAILS PLAN 
 
1) WILLEY PLAN & FLOOR PLAN
 
1) Malcolm E. Willey Residence, Plot Plan (FLLW #3401.21). Text: "House for Mr. + Mrs. Malcolm M. Willey, Minneapolis, Minnesota." Text bottom right: "Architect Frank Lloyd Wright." (S#0376.18.1224-1)
 
1B) Detail of the Malcolm E. Willey Residence, Floor Plan (FLLW #3401.21).
 
 
 
2) WILLEY BASEMENT PLAN
 
2) Malcolm E. Willey Residence, Basement Plan (FLLW #3401.22). Text: "House for Mr. + Mrs. Malcolm M. Willey, Minneapolis, Minnesota. Frank Lloyd Wright Architect." (S#0376.18.1224-2)
 
2B) Detail of the Malcolm E. Willey Residence, Basement Plan (FLLW #3401.22).
 
 
 
3) WILLEY GROUND & FIRST FLOOR PLAN
 
3) Malcolm E. Willey Residence, Ground, First Floor Plan (FLLW #3401.23). Text: "Ground Plan. House for Mr. + Mrs. Malcolm M. Willey, Minneapolis, Minnesota. Frank Lloyd Wright Architect." (S#0376.18.1224-3)
3B) Detail of the Malcolm E. Willey Residence, Ground, First Floor Plan (FLLW #3401.23).
 
 
 
4) WILLEY ELEVATIONS/SECTION PLAN
 
4) Malcolm E. Willey Residence, South and Kitchen Elevations, Main Section (FLLW #3401.25). Text: "South Elevation. Kitchen Elevation. Main Section. House for Mr. + Mrs. Malcolm M. Willey, Minneapolis, Minnesota. Frank Lloyd Wright Architect." (S#0376.18.1224-4)
 
4B) Detail of the Malcolm E. Willey Residence, South and Kitchen Elevations, Main Section (FLLW #3401.25).
 
 
 
5) WILLEY ELEVATIONS/SECTION PLAN
 
5) Malcolm E. Willey Residence, North, West and East Elevations, Living Room Section. (FLLW #3401.24.) Text: "North Elevation, West Elevation, East Elevation, East Section Through Living Room. House for Mr. + Mrs. Malcolm M. Willey, Minneapolis, Minnesota. Frank Lloyd Wright Architect." (S#0376.18.1224-5)
 
5B) Detail of the Malcolm E. Willey Residence, North, West and East Elevations, Living Room Section. (FLLW #3401.24.)
 
 
 
6) WILLEY DETAILS SHEET 1
 
6) Malcolm E. Willey Residence, Detail Sheet 1, Millwork. Windows, Doors, Kitchen Case Section (FLLW #3401.27). Text: "Windows, Doors, Kitchen Case Section. Detail Sheet 1. House for Mr. + Mrs. Malcolm M. Willey, Minneapolis, Minnesota. Frank Lloyd Wright Architect." (S#0376.18.1224-6)
 
 
 
7) WILLEY DETAILS SHEET 2
 
7) Malcolm E. Willey Residence, Detail Sheet 2. Glass, Head, Mullion, Bottom (FLLW #3401.28). Text: "Detail Sheet 2. Glass, Head, Mullion, Bottom. House for Mr. + Mrs. Malcolm M. Willey, Minneapolis, Minnesota. Frank Lloyd Wright Architect." (S#0376.18.1224-7)
 
 
 
8) WILLEY DETAILS PLAN
 
8) Malcolm E. Willey Residence, Truss, Framing, Reflected Ceiling, Astore Room Plan (FLLW #3401.26). Text: "Detail of Truss, Roof Framing Plan, Reflected Ceiling Plan, Store Room Floor Plan. House for Mr. + Mrs. Malcolm M. Willey, Minneapolis, Minnesota. Frank Lloyd Wright Architect."
Plans are dated: "FLLW, Feb 26, 34." (S#0376.18.1224-8)
 
   
   
MINNESOTA MONTHLY
   
Date: 1994

Title: Minnesota Monthly - Oct 1994 (Published monthly by Minnesota Monthly, on behalf of Minnesota Public Radio, St. Paul, Minn.)

Author: McBride, Elizabeth

Description: "The Wright Cabin For Skiing. Cross-Country Ski and Share an Architect's Dream at the Seth Peterson Cottage... The Seth Peterson Cottage, near Lake Delton, Wisconsin, is the only Wright house that can be rented for overnight stays. Compact (880 square feet) yet spacious, serene yet powerful, in Wright's inimitable way, the cottage offers an extraordinary opportunity to learn what's behind all the fuss over this architect..." Includes two photographs. Original cover price $2.50.

Size: 8 x 11

Pages: Pp 62-63

ST#: 1994.88.0715

   
   
   
MINNEAPOLIS TRIBUNE
   
Date: 1972

Title: Minneapolis Tribune Picture Magazine - August 20, 1972 (Published weekly by the Minneapolis Tribune, Minneapolis, Minnesota)

Author: Meier, Peg

Description: "A gem of a room finds a museum setting." In 1969, the long time owners of the Francis Little Residence II, in Wayzata, Minnesota was put on the market. After three years, and no interest, they decided to sell the house piece-meal instead of demolishing it. It was purchased by the Metropolitan Museum of Art in New York, and they reinstalled the Living Room in the American Wing. "This is the most beautiful room I have ever seen..." Morrison Heckscher, Curator of the American Wing. Includes 11 photographs of the original house in its original setting by Earl Seubert and Regene Radniecki, plus one portrait of Frank Lloyd Wright. From the Jack Howe estate, a gift from Kathryn Smith.

Size: 10.75 x 12.75

Pages: Pp Cover 6-12, 15, 20-21

S#:
1909.52.0319
   
Date: 1973

Title: Minneapolis Tribune Picture Magazine - April 1, 1973 (Published weekly by the Minneapolis Tribune, Minneapolis, Minnesota)

Author: Premack, Frank

Description: "Life at Taliesin West... Fourteen years after Wright's death, the spirit of the master architect still dominates the Taliesin Fellowship, a community of a few dozen people who spend nine months of the year at Taliesin West, a stone-and-red-beamed enclave in the desert eight miles from Scottsdale, and the summer at Spring Green, Wisconsin, at another Taliesin Wright built...." Includes 16 photographs by Kent Kobersteen of Mrs. Wright, Taliesin West and the apprentices that work there, including: Jeffrey Scott Will, Dennis Tuberty, Mrs. Kamnal Amin and Bruce Brooks Pfeiffer. Two copies from the Jack Howe estate, a gift from Kathryn Smith.

Size: 10.75 x 12.75

Pages: Pp Cover, 30-35, 38

S#:
1940.23.0319, 1940.24.0319
   
   
   
MISSOURI
   
   BOTT    COMMUNITY CHURCH    KRAUS    PAPPAS    SONDERN  
   
   
KRAUS
 
Date: 2016

Title: Ladue News - April 8, 2016 (Special bound pull-out section) (Published by Ladue News, St. Louis, MO)

Author: Nay, Brittany

Description: Article on the Kraus House. "The "Wright" Design. The Rich Roots of the Frank Lloyd Wright House in Ellsworth Park Are a Nod to His Democratic Vision of Modern American Architecture. Nestled amid 10 1/2 wooded acres on the outskirts of Kirkwood, Missouri, sits a little known architectural gem designed by a well-known architect. As guest pass through the properties red gate and across the brick homes threshold, they are immersed in the epitome of modern architecture. It's The Frank Lloyd Wright house in Ellsworth Park (FLWHEP), and its roots run deep in St. Louis. Built for artist Russell Krauss and his wife, Ruth, the architectural framework of the 1900 square-foot house at 120 N. Ballass Road. was finished in the late 1955, but it would be another decade before it's interior was complete. "Russell had long admired Wright's designs, but did not think he [could] afford one of his houses," says Jean King Hession, an architectural historian, writer and curator specializing in midcentury modernism. "After reading [a 1948] article in House Beautiful magazine, in which Loren Pope..." Includes five photographs of the Kraus Residence.

Size: 10.75 x 14

Pages: Pp 31-33

ST#:
2016.29.0818
   
   
   
HOME   ARTIFACTS   AUDIO   BOOKS   PERIODICALS   PHOTOS   POSTCARDS   POSTERS   STAMPS   STUDIES   ASSISTING   ABOUT   SLIDE SHOW
To donate or pass on information, comments or questions:
steinerag@msn.com
©Copyright Douglas M. Steiner, 2001, 2026